Favorito y comentario
Affitto capannone industriale in can quadres 1 in Sabadell
Caratteristiche principali
- 4.289 m2
- 2 bagni
- 4,52 €/m2
Informazioni dettagliate
Nave industrial en alquiler en EixampleSant Oleguer08203
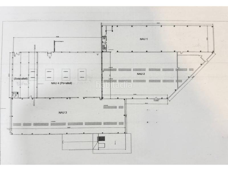
Fincamps comercializa excepcional nave en la zona de Sant Oleguer en Sabadell , la superficie de la nave es de 4.289 m² y se distribuye de la siguiente manera :
- Una primera zona con 1.000m² y unas medidas de 42m de ancho y 24m de profundidad aproximadamente todo ello con una espectacular altura de 12m , en la misma zona pero en un extremo disponemos de casi 200m² de oficina la cual se podría anular si necesitáramos mas espacio ya que disponemos de la misma altura de 12m.
-Un asegunda zona de 866m²con una anchura de 60m y una profundidad de 14m , acceso por una puerta peatonal en un extremo y otro acceso de mas de 4m de anchura , en esta zona la altura queda limitada a 4 m.
-Una tercera zona con 1.134m² con unas dimensiones de 46 m de anchura por 24 m de profundidad aproximadamente con una excepcional altura de 7 m , dispone también de un altillo de 321 m². Puerta de acceso TIR con 4,5 m de altura y 5,4 m de anchura.
-Una cuarta zona con una superficie total de 1099 m², disponemos de una anchura de 58 m y una profundidad de 18m aproximadamente , todo ello con una excepcional altura libre de 9 m , totalmente diáfana , la nave dispone de un acceso peatonal y una puerta TIR independiente con un muelle de carga .
Si necesita una nave de gran capacidad y excepcional altura no dude en consultarnos.
Usos permitidos:
-Industrial
-Almacén
-Servicios.
ultima modifica
Distribuzione
- Superficie 4289 m2
Caratteristiche Generali
- Anno di costruzione 1875
Galleria
Ubicazione
Sol i Padrís - Sant Oleguer Can Quadres 1