Voto Salvato!
Lo vedrai solo tu
Commento salvato!
Aggiungi la tua valutazione e/o un commento per questo annuncio. Lo vedrai solo tu

Affitto capannone industriale in Las Castañeras - Bulevar Arroyomolinos

  • 225 m2
  • 6,67 €/m2

IMPRESIONANTE Nave en La Mejor Ubicación y con la mayor visibilidad del Polígono de Arroyomolinos. La nave cuenta con 225 m en dos

IMPRESIONANTE Nave en La Mejor Ubicación y con la mayor visibilidad del Polígono de Arroyomolinos. La nave cuenta con 225 m² en dos plantas.

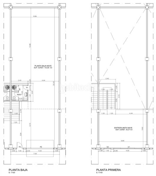
- La primera planta son 160 m² diáfanos, consta de una bonita recepción, un aseo y una amplía sala que se puede utilizar como almacén, expositor... te da un sinfín de opciones.

- La segunda planta consta de otros 40m² muy bien utilizados ya que es donde se sitúan otras 2 oficinas. Puedes utilizar la parte de arriba como una oficina o utilizarla para exposiciones.

- Patio delantero de 25m².

- Cuenta con techo de la nave totalmente aislado, corriente trifásica, fibra óptica, videovigilancia en todo el Polígono, plaza aparcamiento en la puerta Vado.

La nave está ubicada en una zona industrial-comercial con parada de autobús y con acceso a las principales carreteras, A-5 y Avenida de Portugal.

A 29 km de la Puerta del Sol al suroeste, por la carretera A-5, pasado Parque Coímbra a la izquierda, tomando la carretera comarcal M-413 o el más reciente bulevar (Salidas 23 y 25). A través de esta autovía se accede, en dirección Madrid, a la circunvalación M-50, a 10,5 kilómetros de Arroyomolinos y a la M-40, a 19 km de la localidad.
Acceso a la autopista de peaje R-5 a través de su incorporación en la primera rotonda de la carretera comarcal M-413, en dirección a Moraleja de Enmedio.

El municipio está situado dentro de la Comunidad de Madrid, en la zona suroeste. El terreno no urbanizado se utiliza en su mayoría como tierras de cultivo o fincas privadas. En cuanto al relieve, está compuesto por colinas en su totalidad, excepto en las proximidades a los arroyos. Se encuentra encajonado en torno al Arroyo de los Combos, afluente del que nace en una localidad vecina, y sus propios afluentes y ramblas.

No dejes escapar esta maravillosa oportunidad...Llámanos…
Puede ser tuya y solo tuya no tardes en llamarnos te estamos esperando...

¡Queremos conocerte!
Encuentra más en [IW]

ultima modifica

Distribuzione

  • Superficie 225 m2
Annuncio: 15507000000179

Ubicazione

Las Castañeras - Bulevar

Naviga per la mappa cliccandoci sopra
Ti avvisiamo quando abbiamo un annuncio come questo? Crea il tuo avviso e noi ti avvertiremo per posta elettronica quando ci saranno annunci nuovi o se saranno modificati
 

Contatta PRIGAR INMOBILIARIA ONLINE

Codice rif. annuncio habitaclia/PG-170:

Vedrai il telefono dopo aver inviato il tuo contatto all’annunciante di modo che ti può rispondere.
Vedrai il telefono dopo aver stabilito il contatto
Inviando...