Voto Salvato!
Lo vedrai solo tu
Commento salvato!
Aggiungi la tua valutazione e/o un commento per questo annuncio. Lo vedrai solo tu

Duplex in Centre Mataró

Camí Ral de la Mercè

  • 172 m2
  • 3 hab.
  • 1 bagno
  • 1.483 €/m2

Dúplex a reformar.173m. Camí Ral, Mataró Centro.

-Dúplex en el centro de Mataró, Camí Ral.
-
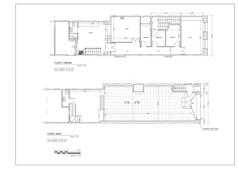
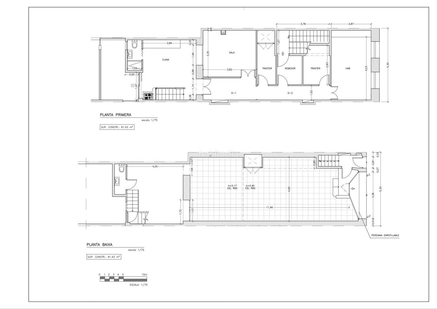
Se compone de planta baja en la que se ubica un local y planta alta, destinada a vivienda. La total superficie construida de esta entidad es de 173m². En planta baja, tiene una superficie construida de 88m². En planta primera tiene una superficie construida de 86m² destinados a vivienda. Está distribuida en recibidor, dos distribuidores, 3 habitaciones, una sala-comedor, una cocina, un baño y una escalera interior que comunica con la planta baja.
El conjunto está para reformar a tu gusto, ya sea usando la planta baja como parking y despacho o trastero y la planta primera como vivienda, o convertirlo en un dúplex completamente habitable.
-
AVISO LEGAL: El precio aquí indicado no incluye los gastos de compra (Notaria, Registro de la propiedad) ni los impuestos (generalmente ITP) que son a cargo del comprador de acuerdo a la Ley vigente. Si se opta por la compra mediante Crédito Hipotecario, los gastos pueden ser ligeramente superiores al sumar los gastos propios de la constitución del crédito,, de la gestoría y de nuevo, registro de la propiedad.

ultima modifica

Distribuzione

  • 3 stanze
  • Superficie 172 m2
  • 1 bagno

Caratteristiche Generali

  • Senza posto auto
  • Senza aria condizionata
  • Anno di costruzione 1963
  • Certificato energetico :
    Consumo:
    C
    145 kW h m2 / año
    Emisiones:
    C
    29 kg CO2 m2 / año

Impianti condominiali

  • Senza ascensore
Annuncio: 50219000000036

Ubicazione

Centre Camí Ral de la Mercè

Naviga per la mappa cliccandoci sopra
255.000 € Prezzo dell´annuncio
3.089 €/m2€/m2 distrito
1.483 €/m2€/m2 dell´annuncio
52% più economico della media*
Vedi evoluzione €/m2 in Mataró (Centre)
Ti avvisiamo quando abbiamo un annuncio come questo? Crea il tuo avviso e noi ti avvertiremo per posta elettronica quando ci saranno annunci nuovi o se saranno modificati
 

Contatta El Torrent Set

Codice rif. annuncio habitaclia/00337:

Vedrai il telefono dopo aver inviato il tuo contatto all’annunciante di modo che ti può rispondere.
Vedrai il telefono dopo aver stabilito il contatto
Inviando...