Voto Salvato!
Lo vedrai solo tu
Commento salvato!
Aggiungi la tua valutazione e/o un commento per questo annuncio. Lo vedrai solo tu

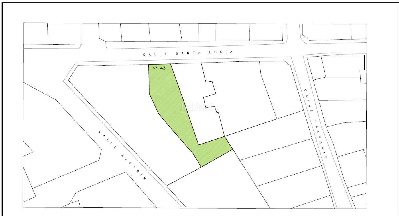
Locale commerciale in calle santa lucía 43 in Mora

Calle Santa Lucía 43

  • 324 m2
  • 108 €/m2

Local comercial/Almace´n/Garaje en Calle Santa Luci´a, No 43, Mora

¡Oportunidad u´nica! Local comercial, almace´n o garaje.
¡Aprovecha este espacio versa´til y adaptado a tus necesidades! Ubicacio´n: C/ Santa Luci´a, 43, en Mora (Toledo). Caracteri´sticas: Superficie del local: 78 m2. Solar anexo techado interior: 246 m2. Ideal para uso comercial, como almace´n o garaje. Precio increi´ble: 35.000 € MÁS IVA. Facilidades de pago disponibles. Un espacio amplio y bien situado para tu negocio, almacenaje o proyecto personal.

Chiedere altri dati all´annunciante

ultima modifica

Distribuzione

  • Superficie 324 m2

Caratteristiche Generali

  • Senza aria condizionata
  • Certificato energetico :
    Esente
Annuncio: 56994000000005

Ubicazione

Calle Santa Lucía 43

Naviga per la mappa cliccandoci sopra
Ti avvisiamo quando abbiamo un annuncio come questo? Crea il tuo avviso e noi ti avvertiremo per posta elettronica quando ci saranno annunci nuovi o se saranno modificati
 

Contatta SATURNINO GOMEZ CONSTRUCCIONES

Codice rif. annuncio habitaclia/SANTA LUCÍA:

Vedrai il telefono dopo aver inviato il tuo contatto all’annunciante di modo che ti può rispondere.
Vedrai il telefono dopo aver stabilito il contatto
Inviando...