Voto Salvato!
Lo vedrai solo tu
Commento salvato!
Aggiungi la tua valutazione e/o un commento per questo annuncio. Lo vedrai solo tu

Terreno residenziale in carretera carretera de la playa 19 in Almuñécar

  • 2.644 m2
  • 488 €/m2

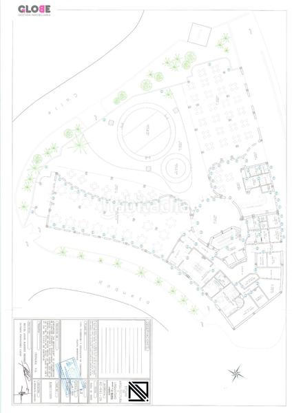
PROYECTO DE 32 APARTAMENTOS TURÍSTICOS EN MARINA DEL ESTE

REFERENCIA: SPLAYA

Presentamos un magnifico proyecto de 32 apartamentos turísticos, 48 plazas de garaje, 15 trasteros y piscinas, zonas comunes y zona de servicios. Está distribuido en 5 plantas con vistas al mar, fácil acceso y está ubicado en el término de Almuñécar en Urb. Marina del Este de Granada.
Tiene licencia de obras pagada, proyecto básico y de ejecución, rebaje y parte de cimentación, declaración de obra nueva en construcción y división horizontal.

¡Invierte en la zona premium de la costa!

"El PVP indicado no incluye impuestos ni gastos de escritura. Honorarios de agencia no incluidos". "Las superficies expresadas en esta página tiene carácter descriptivo y son aproximadas. Los precios puedes ser susceptibles de modificación sin previo aviso."

ultima modifica

Distribuzione

  • Superficie 2644 m2
Annuncio: 22059000005991

Ubicazione

La Herradura Carretera CARRETERA DE LA PLAYA 19

Naviga per la mappa cliccandoci sopra
Ti avvisiamo quando abbiamo un annuncio come questo? Crea il tuo avviso e noi ti avvertiremo per posta elettronica quando ci saranno annunci nuovi o se saranno modificati
 

Contatta GLOBE Gestión Inmobiliaria

Codice rif. annuncio habitaclia/SPLAYA :

Vedrai il telefono dopo aver inviato il tuo contatto all’annunciante di modo che ti può rispondere.
Vedrai il telefono dopo aver stabilito il contatto
Inviando...