Favorito y comentario
Affitto capannone industriale in Los Olivos-Los Ángeles Getafe
Caratteristiche principali
- 2.094 m2
- 7,16 €/m2
Informazioni dettagliate
SE VENDE O SE ALQUILA NAVE INDUSTRIAL REPRESENTATIVA
Descubre una oportunidad excepcional en Getafe! Se vende o se alquila una nave industrial representativa que destaca por su magnífica visibilidad y su ubicación estratégica, con excelentes accesos a las principales vías de comunicación como la A4, A42, M50 y M45. Este impresionante edificio cuenta con un total de 2,094 m² construidos sobre una parcela de 1,322 m², distribuidos en cuatro plantas de aproximadamente 500 m² cada una, todas ellas recién reformadas para ofrecerte un espacio moderno y funcional.
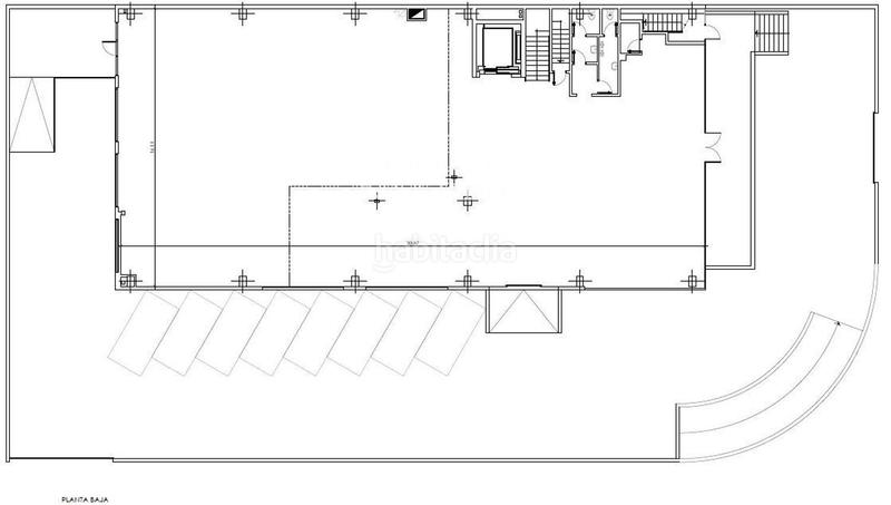
En la planta sótano, de 557 m², encontrarás capacidad de parking para 20 vehículos, además de dos baños que añaden comodidad a tus operaciones. La planta baja, con 674 m² y una altura útil de 6 metros, se divide en tres espacios versátiles, incluyendo una entrada peatonal, una entrada para pequeñas mercancías y otra con cuatro puertas TIR, complementada con un muelle de carga y dos baños.
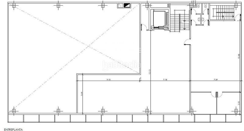
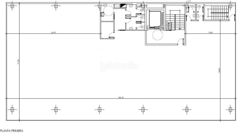
La entreplanta de 306 m² alberga una gran oficina central, dos despachos, dos baños y una amplia zona de trabajo de 180 m², ideal para la gestión de tu equipo. En la primera planta, de 557 m², encontrarás dos oficinas, dos baños y una extensa zona de trabajo de 431 m², perfecta para adaptarse a tus necesidades empresariales.
Este edificio, construido con una sólida estructura de hormigón y cubierta plana, cuenta con un pavimento de cemento pulido que garantiza durabilidad y fácil mantenimiento. Las oficinas y baños han sido reformados con acabados de alta calidad, creando un ambiente profesional y acogedor. No dejes pasar la oportunidad de establecer tu negocio en un espacio que combina funcionalidad, comodidad y una ubicación privilegiada.
¡Contáctanos para más información y ven a conocer tu futura nave!
Más información de esta y otras propiedades en nuestra web:
Impuestos y gastos NO INCLUIDOS: ITP o IVA, notaría, registro, gestoría, tasación, etc. Los datos específicos sobre la finca publicada, pueden ser aproximados, por ello no son vinculantes ni contractuales, se muestran a título informativo.
ultima modifica
Distribuzione
- Superficie 2094 m2
Caratteristiche Generali
- Anno di costruzione 2003
Galleria
Ubicazione
Los Olivos-Los Ángeles