Voto Salvato!
Lo vedrai solo tu
Commento salvato!
Aggiungi la tua valutazione e/o un commento per questo annuncio. Lo vedrai solo tu

Affitto locale commerciale in helsinki kalea 10 in Vitoria - Gasteiz

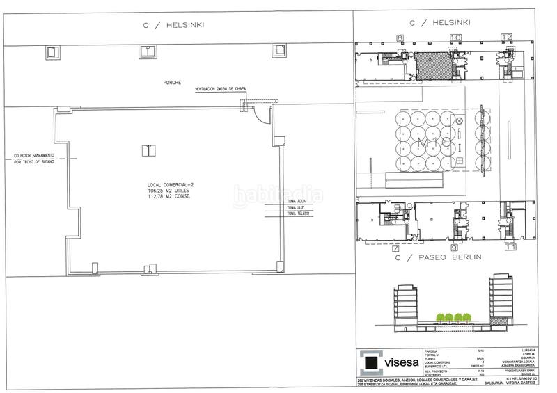
  • 106 m2
  • 3,20 €/m2

Modalidades: Venta, Alquiler y Alquiler con opción de compra.

Local de obra nueva, diáfano, sin acondicionar, con muchas posibilidades.
Modalidad de comercialización: Venta en plena propiedad, Alquiler y Alquiler con opción de compra (AROC).

Superficie útil: 106,25 m2u (aprox. ).

Precios orientativos:
Precio de venta: 83.215 € (más IVA).
Alquiler con opción a compra: 339 € (más IVA).

Además en el alquiler o Alquiler con opción a compra las características son las siguientes:

•5 años de contrato.

•Carencia de 6 meses en el pago de la renta por hacer obras de reforma.

•Un 25% de descuento durante 6 meses por cada puesto de trabajo generado (incluido el autoempleo) con un máximo del 50% de bonificación.

•En el alquiler con opción a compra, a la firma del contrato y por tan sólo un pago del 1% del precio estipulado de venta, se consigue:

1. Una opción de compra con una reducción asegurada si se ejecuta la opción de compra del inmueble, descontado del precio de compra además de ese 1% abonado, un importante% de las rentas abonadas hasta el momento de la compra. El % varía según el año que se quiera ejercitar la compra.
2. Asegura por contrato, el precio máximo al que se puede comprar el local, evitando el riesgo de subida de precios en el mercado en los próximos años.

Más información:
Oficina de Atención a la Ciudadanía de Vitoria-Gasteiz
Portal de Gamarra 1A - Bajo (Edificio El Boulevard - entrada por C/ Zaramaga)
01013 Vitoria-Gasteiz.
Tfno:
E-mail:

adi.eus/webvis01-localeslistado/es/?pageSize=10&rowIni=1&idioma=es&idProvincia=1&poblacion=Vitoria-Gasteiz

ultima modifica

Distribuzione

  • Superficie 106 m2

Caratteristiche Generali

  • Senza ammobiliare
  • Senza aria condizionata
  • Anno di costruzione 2006
  • Certificato energetico :
    Esente
Annuncio: 31065004113787

Ubicazione

Salburua - Arantzabela Helsinki Kalea 10

Naviga per la mappa cliccandoci sopra
Ti avvisiamo quando abbiamo un annuncio come questo? Crea il tuo avviso e noi ti avvertiremo per posta elettronica quando ci saranno annunci nuovi o se saranno modificati
 

Contatta VISESA

Codice rif. annuncio habitaclia/LOCAL SALBURUA (VITORIA/GASTEIZ) (A-012/306) :

Vedrai il telefono dopo aver inviato il tuo contatto all’annunciante di modo che ti può rispondere.
Vedrai il telefono dopo aver stabilito il contatto
Inviando...