Favorito y comentario
Affitto locale commerciale in Orihuela ciudad Orihuela
Caratteristiche principali
- 265 m2
- 7,17 €/m2
Informazioni dettagliate
Excelente oportunidad de inversión!
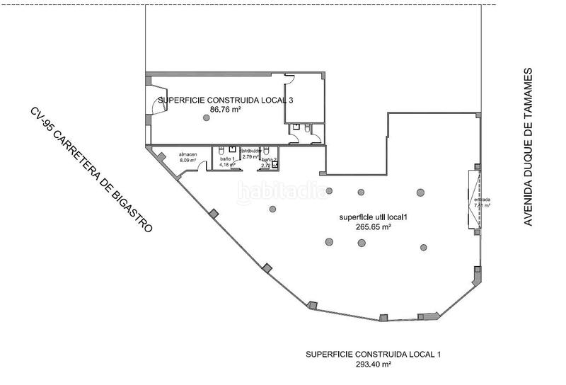
Este local en Orihuela Ciudad cuenta con una ubicación privilegiada, ofreciendo una gran visibilidad y una alta afluencia de personas.
Con un amplio espacio de 265 metros cuadrados y techos de 4,75 metros de altura, este local es perfecto para cualquier tipo de negocio.
Su luminosidad es destacable gracias a sus 7 ventanales y 45 metros de fachada.
¡Contáctanos ahora mismo!
-??? Orihuela Ciudad (Alicante)
-?? 1.900 €
-?? Año construcción: 2003 (Buen estado)
-? 265 m² construidos
-?? 45 metros de fachada
-?? 7 Ventanales
-?? Techo de doble altura con 4,75 metros
-???? 2 Aseos completos
-??????? Horno de leña
-?? Salidas de humo
-?? Orientación Sur-Este (Muy luminoso)
-?? 0770410XH8107S0003KB (Ref. Catastral)
-?? ¡Ven a visitarme! CITA PREVIA
VALENTIA Real Estate
Joaquín Manresa
C/ Calderón de la barca 12, Bajo comercial esquina C/ San Pascual Orihuela 03300 (Alicante)
?? Ubicación: AV DUQUE DE TAMAMES 48, 03300, Orihuela, (ALICANTE)
.gl/9qs6B2itEuX43TbP9
ultima modifica
Distribuzione
- Superficie 265 m2
Caratteristiche Generali
- Anno di costruzione 2003
Galleria
Ubicazione
Orihuela Ciudad Calle Duque de tamames