Voto Salvato!
Lo vedrai solo tu
Commento salvato!
Aggiungi la tua valutazione e/o un commento per questo annuncio. Lo vedrai solo tu

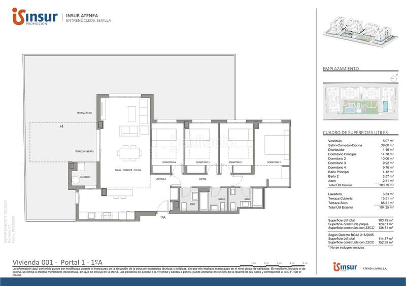
Appartamento 104m2 in avenida de las universidades 7 in Dos Hermanas

  • da 104 m2
  • 4 hab.
  • 2 bagni
  • 3.538 €/m2
Insur Atenea
Appartiene alla promozione

Insur Atenea

Esta promoción tiene 4 tipos de abitazioni Vedi promozione

¡Fase 1 llave en mano! ¡VISITA PISO PILOTO! PISOS DE 2 A 4 DORMITORIOS CON TERRAZAS Y AMPLIAS ZONAS COMUNES

Un exclusivo residencial de 128 viviendas de obra nueva en Dos Hermanas, Sevilla, de 2 a 4 dormitorios, con increíbles terrazas y espectaculares áticos y bajos con altas calidades y estancias muy luminosas gracias a la orientación que presentan las viviendas. En sus zonas comunes podrás encontrar un amplio abanico pensado para el ocio y disfrute de toda la familia con amplias y verdes zonas ajardinadas, zona coworking, una piscina infantil y otra para adultos, salón social, gimnasio, sala de juegos de interior, zona de juegos de exterior y pista de pádel.

Insur Atenea se encuentra en la Avenida de las Universidades, en Entrenúcleos, la principal zona de expansión de Sevilla, a un paso de la capital y junto a Montequinto. Su ubicación, frente a parques y espacios verdes, permite disfrutar de unas terrazas con privilegiadas vistas panorámicas hacia Sevilla.

Insur Atenea cuenta con calificación energética A, lo que se traduce en un mayor ahorro y eficiencia.

Promoción con Plan Flexible INSUR
Con el Plan Flexible Insur, podrás estar seguro. Estudiamos cada caso de manera personalizada y te damos el apoyo y asesoramiento que más se ajuste a tus necesidades con medidas como estas:

Calendario de pago a medida de tus posibilidades.

Estudio de fórmulas de pago de las cantidades acordadas inicialmente y flexibilidad en el pago de las mismas.

Estudio de fórmulas excepcionales para aplazar el pago de cuotas a un momento posterior a la entrega de la vivienda.

*Medidas aplicables exclusivamente a INSUR ATENEA previo estudio personalizado.
**Garaje y trastero no incluidos en el precio.
La promoción cuenta también con local comercial a la venta en la planta baja.
Grupo Insur es líder en Entrenúcleos desde 2015, siendo los primeros en apostar y ofrecer la posibilidad de vivir en la zona de mayor proyección de crecimiento de Sevilla. Con más de 15 promociones y más de 2,200 viviendas, Grupo Insur ofrece al cliente bienestar y calidad en sus viviendas, creando lugares donde sentirse inspirado cada día.
Líderes en Entrenúcleos, inspirando el mañana.

ultima modifica

Distribuzione

  • 4 stanze
  • Superficie 104 m2
  • 2 bagni
  • Cucina abitabile: No
  • ripostiglio

Caratteristiche Generali

  • Riscaldamento
  • Senza posto auto
  • Aria Condizionata
  • Certificato energetico :
    Consumo:
    A
    1 kW h m2 / año
    Emisiones:
    A
    1 kg CO2 m2 / año

Impianti condominiali

  • Ascensore
  • Piscina Condominiale
  • Equipamiento deportivo
Annuncio: 55330000000070

Ubicazione

Arco Norte - Avda España Avenida de las Universidades 7

Naviga per la mappa cliccandoci sopra
368.000 € Prezzo dell´annuncio
1.796 €/m2€/m2 población
3.538 €/m2€/m2 dell´annuncio
Vedi evoluzione €/m2 in Dos Hermanas
Ti avvisiamo quando abbiamo un annuncio come questo? Crea il tuo avviso e noi ti avvertiremo per posta elettronica quando ci saranno annunci nuovi o se saranno modificati
 

Appartiene alla promozione Insur Atenea

Dos Hermanas - Avenida de las Universidades, 7
Promoción Insur Atenea Dos Hermanas - Avenida de las Universidades, 7 da 274.000 € Vedi promozione
Altri tipi di case di questa promozione

Contatta GRUPO INSUR

Codice rif. annuncio habitaclia/P1 1A:

Vedrai il telefono dopo aver inviato il tuo contatto all’annunciante di modo che ti può rispondere.
Vedrai il telefono dopo aver stabilito il contatto
Inviando...