Favorito y comentario
Appartamento con riscaldamento parcheggio in Pedralbes Barcelona
Caratteristiche principali
- 185 m2
- 4 hab.
- 4 bagni
- 9.730 €/m2
Informazioni dettagliate
Piso en venta en Pedralbes
VIVIENDA EXTERIOR CON TERRAZAS, DISEÑO ELEGANTE Y TRES PLAZAS DE PARKING EN LA ZONA MÁS EXCLUSIVA DE BARCELONA
aProperties presenta en exclusiva en el corazón de Pedralbes, junto al Real Club de Tenis, este elegante primer piso de una superfície total registrada de 232 m² construidos, que destaca por su amplitud, su excelente estado de conservación y una luminosidad excepcional gracias a su orientación y altura equivalente a un segundo piso.
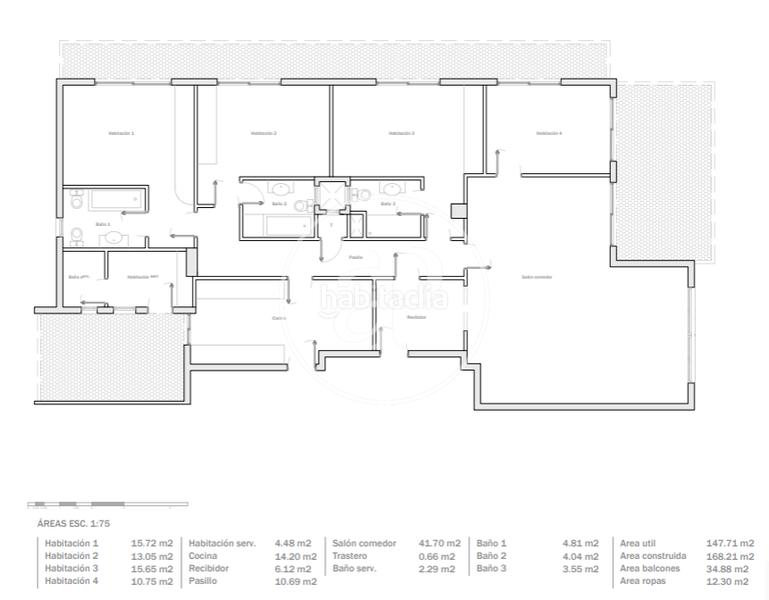
La vivienda de 168 m² construidos según catastro, dispone de un amplio recibidor que da paso a un salón-comedor, todo bañado por luz natural gracias a sus grandes ventanales y a su salida directa a una terraza de unos 16 m² muy disfrutable, lo que convierte la zona de día en un espacio muy agradable y tranquilo. Además, contiguo hay un práctico despacho por el que podría ampliarse la zona de estar. La cocina a gas con office y diseñada a medida, cuenta con todos los electrodomésticos y dispone de salida a un amplio lavadero de unos 12 m² con una zona de servicio independiente con dormitorio y baño.
La zona de noche, a la que accedemos por un agradable pasillo y en el que hay ubicado un aseo de cortesía, utilizado como trastero, se compone de tres dormitorios dobles tipo suite, todos con armarios empotrados y salida a una segunda terraza de 19 m². La suite principal dispone de un cómodo vestidor y baño privado. En total, la vivienda ofrece cuatro dormitorios (incluyendo el de servicio) y cinco baños.
Los acabados de alta gama incluyen suelos de parquet, techos altos, carpintería de calidad, calefacción por radiadores y ventanales de aluminio que maximizan la entrada de luz natural.
La finca, apacible y bien mantenida, dispone de ascensor principal y montacargas, conserje, tres plazas de aparcamiento en el mismo edificio y un trastero. Además, la azotea se ha habilitado como solárium para el disfrute de los residentes. Una propiedad lista para entrar a vivir, ideal para quienes valoran el confort, el diseño y la calidad de vida en una ubicación codiciada y privilegiada.
¿Te gustaría visitarlo? Contáctanos y solicita tu cita.
Ref. VB2511011
ultima modifica
Distribuzione
- 4 stanze
- Superficie 185 m2
- Terrazza 35 m2
- 4 bagni
- ripostiglio
Caratteristiche Generali
- Riscaldamento
- Posto auto
- Senza aria condizionata
- Anno di costruzione 1972
Impianti condominiali
- Ascensore
Galleria
Ubicazione
Pedralbes Carrer del Marquès de Mulhacen