Voto Salvato!
Lo vedrai solo tu
Commento salvato!
Aggiungi la tua valutazione e/o un commento per questo annuncio. Lo vedrai solo tu

Appartamento con riscaldamento parcheggio piscina in Córdoba

  • 121 m2
  • 3 hab.
  • 2 bagni
  • 3.017 €/m2

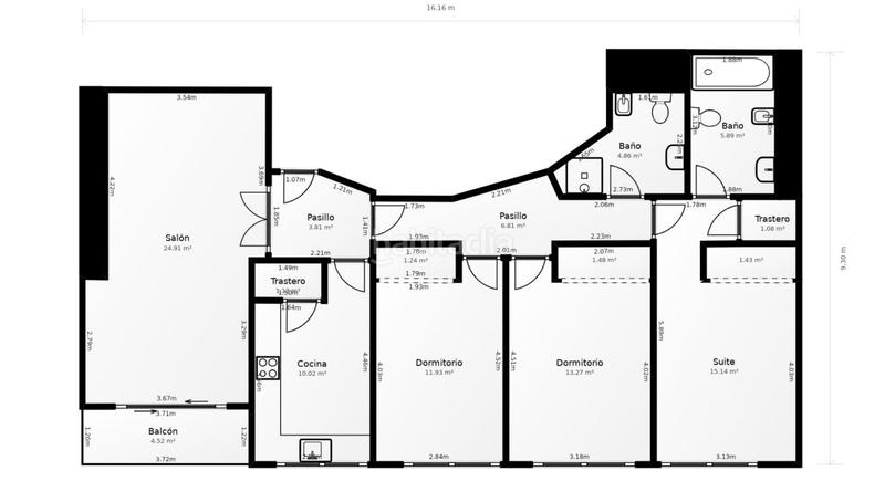
PISO EN ARRUZAFILLA

Descubre este amplio y luminoso piso de 103 m² situado en la Arruzafilla. Es una primera planta con ascensor, dentro de una exclusiva comunidad con piscina y parque infantil, ideal para disfrutar en familia.

El piso destaca por sus espacios amplios y bien distribuidos:
? Gran salón con dos estancias y salida a una terraza perfecta para relajarte o compartir buenos momentos.
??? Cocina independiente con espacio para comer a diario.
??? Tres dormitorios, uno de ellos tipo suite con baño incorporado, además de un segundo baño completo.

Y eso no es todo: INCLUYE DOS PLAZAS DE GARAJE Y UN TRASTERO, ofreciendo comodidad y espacio extra para tu día a día.

?? Vive en una zona tranquila, moderna y bien comunicada, con todos los servicios a tu alcance.

¡Ven a visitarlo y enamórate!

ultima modifica

Distribuzione

  • 3 stanze
  • Superficie 121 m2
  • 2 bagni
  • ripostiglio

Caratteristiche Generali

  • Riscaldamento
  • Posto auto
  • Aria Condizionata
  • Piano numero 1
  • Anno di costruzione 2002
  • Vicino ai trasporti pubblici
  • Certificato energetico :
    Consumo:
    C
    10 kW h m2 / año
    Emisiones:
    D
    57 kg CO2 m2 / año

Impianti condominiali

  • Ascensore
  • Piscina Condominiale
Annuncio: 55609000000205

Ubicazione

Tablero Bajo - Arruzafilla ALFONSINA STORNI

Naviga per la mappa cliccandoci sopra
365.000 € Prezzo dell´annuncio
2.607 €/m2€/m2 distrito
3.017 €/m2€/m2 dell´annuncio
Vedi evoluzione €/m2 in Córdoba (Noroeste)
Ti avvisiamo quando abbiamo un annuncio come questo? Crea il tuo avviso e noi ti avvertiremo per posta elettronica quando ci saranno annunci nuovi o se saranno modificati
 

Contatta INMOSÍ

Codice rif. annuncio habitaclia/M201789SI:

Vedrai il telefono dopo aver inviato il tuo contatto all’annunciante di modo che ti può rispondere.
Vedrai il telefono dopo aver stabilito il contatto
Inviando...