Favorito y comentario
Appartamento con riscaldamento parcheggio in Gran Via de Colom Inca
Caratteristiche principali
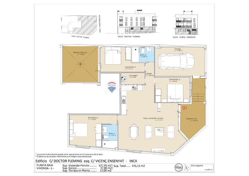
- 145 m2
- 3 hab.
- 2 bagni
- 2.861 €/m2
Informazioni dettagliate
PLANTA BAJA DE 127M2 TERRAZAS EN OBRA NUEVA PARQUING INCLUIDO
**¡OBRA NUEVA en Inca (Mallorca) – Entrega Julio 2026!**
Descubre esta espectacular planta baja de 127 m² construidos más 18 m² de patio privado, ubicada en la encantadora localidad de Inca, en el corazón de Mallorca. Diseñada con gusto y con acabados de primeras calidades, es ideal para quienes buscan confort, diseño y eficiencia en una ubicación estratégica.
Distribuida en 3 amplias habitaciones y 2 baños completos (equipados con sanitarios de alta gama y revestimientos en porcelánico), esta vivienda combina a la perfección funcionalidad y estilo. El salón comedor se integra con una cocina abierta totalmente montada y equipada con electrodomésticos de primeras marcas, creando un espacio moderno y acogedor para disfrutar en familia o con amigos.
Disfruta del confort de la climatización central por conductos, suelo de parquet*en toda la vivienda (excepto baños), y sistema de aerotermia para una mayor eficiencia energética.
Además, esta planta baja cuenta con:
* Entrada privada e independiente
* Patio exterior de uso exclusivo, ideal para tus momentos de relax o comidas al aire libre
* Plaza de parking privada incluida
* Ventanas de aluminio Cortizo con doble acristalamiento Climalit, que garantizan un excelente aislamiento térmico y acústico
* Carpintería interior de alta calidad y diseño moderno
Todo a estrenar y listo para disfrutar desde el primer día.
Ubicada en Inca, una ciudad en plena expansión con todos los servicios a tu alcance: comercios, centros educativos, transporte público y conexión rápida con Palma y el resto de la isla.
Una oportunidad única de vivir con todas las comodidades en una vivienda moderna, sostenible y con una excelente ubicación. ¡Contáctanos y reserva tu nuevo hogar antes de que se agote!
ultima modifica
Distribuzione
- 3 stanze
- Superficie 145 m2
- Terrazza 30 m2
- 2 bagni
- Cucina abitabile: No
- ripostiglio
Caratteristiche Generali
- Riscaldamento
- Posto auto
- Aria Condizionata
Impianti condominiali
- Senza ascensore
Galleria
Ubicazione
Gran Via de Colom VICENTE ENSENYAT
