InmoGil Gestión, piso en venta Barrio de Salamanca, Calle Ayala.
InmoGil Gestión Inmobiliaria presenta en Calle Ayala, barrio de Salamanca, Madrid, gran vivienda de 323 m2 construidos exterior, en cuarta planta.
Piso está totalmente reformado, amueblado íntegramente y listo para estrenar.
Inmueble señorial, representativo y singular en un inmejorable emplazamiento.
3 amplios y completos dormitorios, con cuarto de baño propio, despacho y aseo de cortesía.
Salón representativo de gran tamaño que junto a su comedor independiente suman más de 55 m2 útiles.
Calefacción comunitaria.
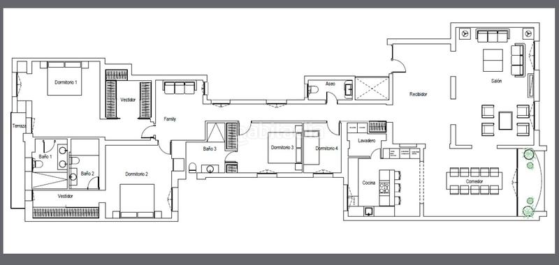
Adjuntamos plano de distribución.
Inmejorables acabados, altura de techos de más de 3m, espacios amplios, diseño muy moderno, confort.
Muy luminoso y con vistas muy despejadas al exterior.
Distribución:
Amplio hall recibidor de 20 m2 útiles, gran salón, comedor independiente, terraza, cocina independiente, lavandería, aseo para invitados, tres dormitorios cada uno con su baño y despacho. Todos los servicios a pie de calle, transporte público y comercios.
INMOGIL GESTION NO COBRA HONORARIOS AL COMPRADOR POR LO QUE EL PRECIO REFLEJADO ES EL REAL.
InmoGil Gestión Inmobiliaria esta su disposición para resolver cualquier duda y ofrecerle clientes para su casa si está pensando en venderla.
“INMOGIL, OTRA FORMA DE HACER LAS COSAS.”
ultima modifica
Testo tradotto da un sistema automatico
Traduzione non disponibile
habitaclia.com non si responsabilizza degli errori che l´informazione mostrata su questa mappa potrebbe contenere. L´utente sarà il responsabile dell´uso che farà della suddetta informazione.
*
Nel prezzo dell´immobile concorrono molti fattori che possono spiegare le variazioni rispetto al prezzo medio: l´ubicazione all´interno del centro abitato, l´orientazione, lo stato di conservazione, le qualità della contruzione, le dotazioni...
Ti avvisiamo quando abbiamo un annuncio come questo?Crea il tuo avviso e noi ti avvertiremo per posta elettronica quando ci saranno annunci nuovi o se saranno modificati
Vedrai il telefono dopo avere inviato il formulario di Contattare con l’annunciante
Inserisci il codice che compare nell’immagine superiore.
Le mie notifiche
Le mie ricerche
i miei favoriti
Annunci contattati
Avviso di un annuncio:
Ti inviamo per posta elettronica gli ultimi cambiamenti nell´immobile selezionato
Avviso annunci simili :
Ti inviamo per mail gli ultimi immobili e le promozioni che sono state pubblicate su habitaclia e che concordano con le preferenze della tua ricerca
Aggiungi a favoriti
Elimina da favoriti
El Índice de referencia de precios de alquiler es un indicador que publica la Agencia Catalana de la Vivienda y que permite conocer una estimación del precio medio del metro cuadrado de alquiler de una vivienda ubicada en una zona y con determinadas características. También orienta sobre el precio mínimo y máximo que puede llegar a tener esa vivienda.