Voto Salvato!
Lo vedrai solo tu
Commento salvato!
Añade tu valoración y/o un comentario para este anuncio. Sólo lo verás tú

Area edificabile industriale in calle migdia 48 in Polinyà

Calle Migdia 48

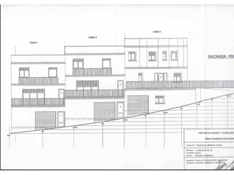
Solar en venta en Polinyà. Urb. Serra Maurina

Venta de solar de 470 m2 en la Urb. Serra Maurina de Polinyà para construir 3 casas pareadas o 1 sola con un gran jardín.
Ubicado a 5 minutos de Sabadell y Polinyà.
Cada casa puede tener 230 m3 de superfície.
Se puede construir PBª más 2 Plantas.
La urbanización está consolidada con todos los servicios.
La calificación urbanística a seguir para la licéncia de obras es: Clau 4, Subzona 4g Serra Maurina, Categoria 4g2, según el PGOU del Ajuntament de Polinyà.
Solar para promotores o particulares.

ultima modifica

Distribuzione

  • Terreno 470 m2
Annuncio: 10094002816355

Ubicazione

Calle Migdia 48

Naviga per la mappa cliccandoci sopra
Ti avvisiamo quando abbiamo un annuncio come questo? Crea il tuo avviso e noi ti avvertiremo per posta elettronica quando ci saranno annunci nuovi o se saranno modificati
 

Contatta FINQUES POLINYÀ

Codice rif. annuncio habitaclia/2734:

Vedrai il telefono dopo aver inviato il tuo contatto all’annunciante di modo che ti può rispondere.
Vedrai il telefono dopo aver stabilito il contatto
Inviando...