Voto Salvato!
Lo vedrai solo tu
Commento salvato!
Aggiungi la tua valutazione e/o un commento per questo annuncio. Lo vedrai solo tu

Casa in casco histórico - ribera - san basilio Córdoba

  • 567 m2
  • 10 hab.
  • 3 bagni
  • 476 €/m2

CASA PARA REFORMAR EN ZONA DE SAN PEDRO

¡Oportunidad única para inversores en el corazón de San Pedro!

Se vende casa situada en un enclave privilegiado de Córdoba, junto a la Facultad de Derecho y la Ribera, en una de las zonas con más encanto y proyección de la ciudad.

Para derribar y reconstruir, con múltiples posibilidades de desarrollo sin limitaciones urbanísticas de fachada , permitiendo el derribo total.

La propiedad cuenta con 567 m² construidos distribuidos en tres plantas y un fachada de 6 metros.

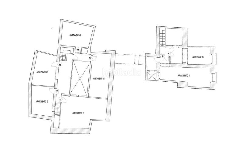
Su distribución y amplitud ofrecen un sinfín de posibilidades: proyectoactual ideal para transformar en hasta 12 apartamentos, alrededor de un precioso patio central andaluz, perfecto tanto para alquiler turístico como residencial.

La ubicación es inmejorable, en una zona de alta demanda, lo que garantiza una excelente rentabilidad y una inversión segura.

Si buscas un inmueble con alma, proyección y un potencial incomparable, no dejes escapar esta joya. ¡Contáctanos y haz realidad tu proyecto en pleno centro de Córdoba!

Disponemos del documento abreviado de la propiedad (según decreto 218/2005 del 11 de Octubre).

En cumplimiento del decreto de la Junta de Andalucía 218/2015 de 11 de Octubre, se informa al cliente que los gastos notariales, registrales, I.T.P, honorarios de la agencia y otros gastos inherentes a la compraventa no están incluidos en el precio.

Los precios, datos e informaciones están sujetos a cambios y modificaciones por parte de la propiedad

Nota importante: Por motivos de protección de datos y seguridad de nuestros clientes propietarios, no se facilita la dirección exacta de la vivienda anunciada. La ubicación mostrada en el mapa o en la descripción es aproximada y con fines orientativos. Para más información o para concertar una visita, no dudes en ponerte en contacto con nosotros.

ultima modifica

Distribuzione

  • 10 stanze
  • Superficie 567 m2
  • Terreno 296 m2
  • 3 bagni

Caratteristiche Generali

  • Anno di costruzione 1913
  • Vicino ai trasporti pubblici
  • Certificato energetico :
    Consumo:
    G
    999 kW h m2 / año
    Emisiones:
    G
    999 kg CO2 m2 / año
Annuncio: 23217000008288

Ubicazione

Casco Histórico - Ribera - San Basilio

Naviga per la mappa cliccandoci sopra
270.000 € Prezzo dell´annuncio
2.017 €/m2€/m2 distrito
476 €/m2€/m2 dell´annuncio
76% più economico della media*
Vedi evoluzione €/m2 in Córdoba (Centro)
Ti avvisiamo quando abbiamo un annuncio come questo? Crea il tuo avviso e noi ti avvertiremo per posta elettronica quando ci saranno annunci nuovi o se saranno modificati
 

Contatta JADE GRUPO INMOBILIARIO

Codice rif. annuncio habitaclia/14120:

Vedrai il telefono dopo aver inviato il tuo contatto all’annunciante di modo che ti può rispondere.
Vedrai il telefono dopo aver stabilito il contatto
Inviando...