Favorito y comentario
Casa con parcheggio in Portocolom Felanitx
Caratteristiche principali
- 128 m2
- 3 hab.
- 3 bagni
- 3.281 €/m2
Informazioni dettagliate
Oportunidad Única en Portocolom Espaciosa Vivienda de 3 Habitaciones con Gran Potencial
Ubicada en el encantador y apacible pueblo de Portocolom, en el municipio de Felanitx, esta propiedad ofrece una ubicación inmejorable, a tan solo 300 metros de la marina. Su proximidad al mar le permite disfrutar de la serenidad de la costa, mientras se encuentra cerca de todos los servicios y actividades
que esta exclusiva zona tiene para ofrecer.
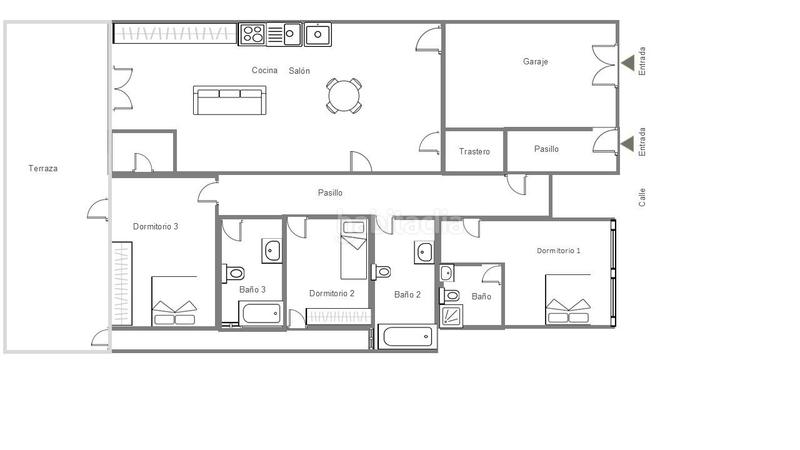
La vivienda se distribuye en tres habitaciones espaciosas, diseñadas para ofrecer máxima comodidad y privacidad. Dos de las habitaciones son suites, lo que asegura un entorno ideal para el descanso. Una de ellas cuenta con un amplio ropero empotrado, mientras que la otra dispone de una pequeña habitación anexa que se puede transformar fácilmente en un vestidor, proporcionando un espacio adicional para organizar y almacenar sus pertenencias de manera elegante.
La tercera habitación, más pequeña, es un espacio versátil que puede ser utilizado como estudio, oficina o habitación adicional, según las necesidades del propietario.
El corazón de la casa es su luminosa cocina-comedor de estilo abierto, con ventanales de gran tamaño que permiten que la luz natural inunde el espacio, creando un ambiente cálido y acogedor. Este es el lugar perfecto para disfrutar de comidas en familia o reuniones con amigos.
Ademas podras utilizar la chimenea en las noches de invierno.
La propiedad también cuenta con tres modernos baños completos, todos equipados con acabados de alta calidad, lo que garantiza una experiencia de confort y funcionalidad en todo momento.
Uno de los aspectos más destacados de esta propiedad es su fondo versátil, que ofrece infinitas posibilidades para personalizar el espacio según los gustos e intereses del comprador. Este área puede ser transformada en un gimnasio privado, una sala de cine, un taller creativo o incluso un área de entretenimiento, adaptándose perfectamente a su estilo de vida.
Además, la propiedad dispone de una preciosa terraza, un espacio al aire libre ideal para relajarse, disfrutar de las vistas o pasar momentos especiales con amigos y familiares, rodeado de la tranquilidad que ofrece Portocolom.
Con su entorno tranquilo, accesible y a solo unos minutos de la marina, esta propiedad es una oportunidad única para quienes buscan una residencia permanente o una segunda vivienda para disfrutar de la belleza del mar Mediterráneo. No importa si busca una vida relajada o aprovechar las actividades que ofrece la zona, esta vivienda se adapta a su estilo de vida.
POSIBILIDAD DE ADQUIRIR SIN PLAZA DE GARAJE POR 390.000 CONSULTEN!
¡No deje pasar esta oportunidad de vivir en uno de los rincones más encantadores de Mallorca!
Contáctenos hoy mismo para más información o para agendar una visita. ¡Será un placer mostrarle su futuro hogar en Portocolom!
RE/MAX ROYAL, inscrita en el Registro Oficial de Agentes Inmobiliarios de las Illes Balears GOIBE
ultima modifica
Distribuzione
- 3 stanze
- Superficie 128 m2
- Terrazza 25 m2
- Terreno 224 m2
- 3 bagni
- ripostiglio
Caratteristiche Generali
- Posto auto
- Anno di costruzione 2001
Galleria
Ubicazione
Portocolom Calle Rodrigo de Triana
