Favorito y comentario
Casa in Pollença poble Pollença
Caratteristiche principali
- 247 m2
- 5 hab.
- 3 bagni
- 2.632 €/m2
Informazioni dettagliate
Casa con Gran Potencial en Pollensa Pueblo
Este impresionante proyecto de renovación está ubicado en la parte alta del Casco Antiguo de Pollensa, cerca del Torrent de Sant Jordi y la carretera principal hacia Lluc, lo que proporciona un fácil acceso a la propiedad.
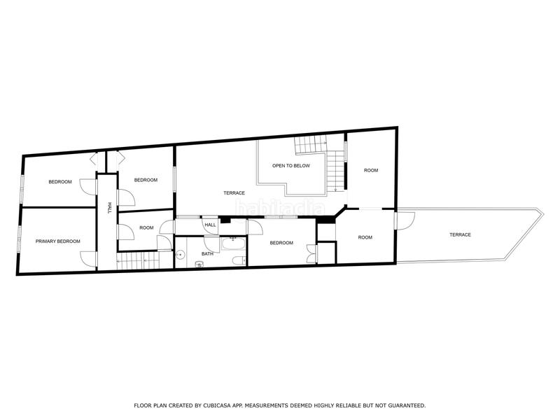
Esta espaciosa propiedad en el corazón de Pollensa ofrece un potencial excepcional y un encanto único, con una distribución versátil que se extiende a lo largo de dos plantas, un patio y una terraza en la azotea.
La planta baja incluye un dormitorio doble de generosas dimensiones con baño en suite, que anteriormente fue un garaje y se convirtió legalmente, aunque podría volver a usarse como garaje si se desea. En este nivel también se encuentran un baño de invitados, una amplia zona de estar, un comedor, una cocina que da a un patio privado y una práctica área de almacenamiento.
El patio proporciona acceso a la primera planta mediante una escalera exterior, donde se encuentra un gran trastero y una fantástica terraza en la azotea con hermosas vistas a las montañas. La primera planta también es accesible internamente desde la sala de estar y cuenta con cuatro dormitorios dobles, uno de ellos con baño en suite.
Aunque la propiedad es actualmente habitable, se beneficiaría de una actualización, particularmente en la cocina y los baños de la planta superior, y ofrece un alcance excepcional para crear una espectacular vivienda de 5 dormitorios. Incluso existe la posibilidad de incorporar espacios como un gimnasio, una sala de juegos o una sala de cine.
Esta es una oportunidad única para transformar una propiedad llena de carácter en la casa de tus sueños en uno de los pueblos históricos más deseados de Mallorca.
ultima modifica
Distribuzione
- 5 stanze
- Superficie 247 m2
- Terreno 294 m2
- 3 bagni
- Cucina abitabile: No
Caratteristiche Generali
- Senza posto auto
- ammobiliato
- Senza aria condizionata
- Anno di costruzione 1980
Galleria
Ubicazione
Pollença Poble Carrer de Jaume III
