Voto Salvato!
Lo vedrai solo tu
Commento salvato!
Aggiungi la tua valutazione e/o un commento per questo annuncio. Lo vedrai solo tu

Casa con riscaldamento in Centre Rubí

  • 146 m2
  • 4 hab.
  • 3 bagni
  • 3.116 €/m2

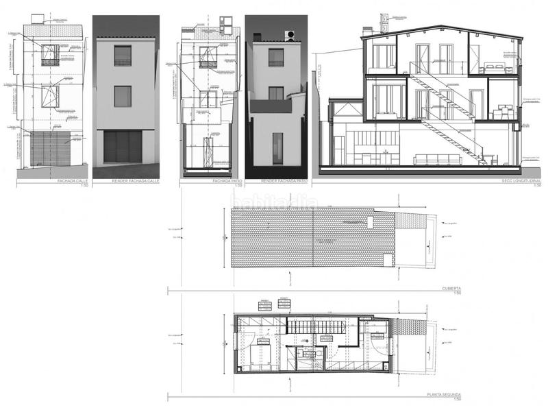
CASA DE OBRA NUEVA EN EL CENTRO DE RUBÍ CON AEROTERMIA Y PLACAS SOLARES FOTOVOLTAICAS.

La vivienda tiene una superficie de 146,14 m² y se distribuye en 4 habitaciones de 13,15 m², 11,31 m², 11,82 m² y 15,10 m². Dispone de 3 baños completos con ducha, un amplio comedor de 31,24 m² con cocina tipo office, despensa, lavadero y terraza.

Cuenta con acabados de alta calidad como puertas lacadas en blanco, suelos de porcelánico y parquet AC5, y escaleras de madera de roble. La climatización incluye calefacción por conductos en la planta baja y aire acondicionado Split (frío y calor) en el resto de la vivienda.

Además, las ventanas son de aluminio con puente térmico, y la propiedad dispone de una puerta blindada y la posibilidad de instalar un ascensor. También cuenta con placas solares fotovoltaicas, lo que permite un ahorro energético significativo.

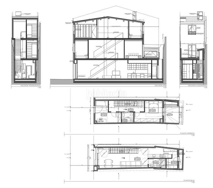
Distribución:

• Planta baja: Amplio comedor de 31,24 m² con cocina office, despensa, lavadero y baño de 4,14 m² con moqueta. Calefacción por conductos.
• Primera planta: Dos habitaciones de 13,15 m² y 11,31 m², una de ellas con acceso a terraza de 8 m², y un baño con plato de ducha.
• Segunda planta: Dos habitaciones de 11,82 m² y 15,10 m², baño con plato de ducha 3,28m2.

Vivienda ideal para familias en una zona tranquila y bien comunicada. ¡No pierdas esta gran oportunidad y ven a verlo sin compromiso!

Calidades:

• Vivienda autónoma por si sola con placas solares fotovoltaicas.
• Aluminio con puente rotura térmica 3 vidrios
• Suelos de porcelanico y parquet AC5
• Puertas lacadas blancas
• Escaleras de madera de roble
• Calefacción por conducto en la planta baja
• Aire acondicionado Split frío y calor
• Aerotermia para agua sanitaria
• Fibra óptica de datos independiente en toda la vivienda,
• Placas solares fotovoltaicas
• Posibilidad de ascensor

La superficie de la vivienda ha sido facilitada por el propietario, consultada en la Sede Electrónica de Catastro, pudiendo haber alguna variación con la superficie real.

En el precio ofertado de venta, no están incluidos los gastos de compraventa: notario, registro, gestoría, ITP (Impuesto de Transmisiones Patrimoniales) o gastos bancarios que pudieran generarse.

Ref.: 60651
ZONA: CENTRO (RUBÍ)

Si tienes alguna pregunta, deseas ir a visitarla, no dudes en contactar con nosotros

¡TE ESPERAMOS!

ultima modifica

Distribuzione

  • 4 stanze
  • Superficie 146 m2
  • 3 bagni

Caratteristiche Generali

  • Riscaldamento
  • Senza posto auto
  • Aria Condizionata
  • Certificato energetico :
    Consumo:
    G
    999 kW h m2 / año
    Emisiones:
    G
    999 kg CO2 m2 / año
Annuncio: 51478000000035

Ubicazione

Centre

Naviga per la mappa cliccandoci sopra
455.000 € Prezzo dell´annuncio
2.274 €/m2€/m2 población
3.116 €/m2€/m2 dell´annuncio
Vedi evoluzione €/m2 in Rubí
Ti avvisiamo quando abbiamo un annuncio come questo? Crea il tuo avviso e noi ti avvertiremo per posta elettronica quando ci saranno annunci nuovi o se saranno modificati
 

Contatta FINCAS GIROL

Codice rif. annuncio habitaclia/27C8720:

Vedrai il telefono dopo aver inviato il tuo contatto all’annunciante di modo che ti può rispondere.
Vedrai il telefono dopo aver stabilito il contatto
Inviando...