Favorito y comentario
Casa con riscaldamento parcheggio piscina in Santiago de La Ribera San Javier
Caratteristiche principali
- 200 m2
- 2 hab.
- 2 bagni
- 1.695 €/m2
Informazioni dettagliate
Promoción de 6 viviendas de obra nueva con los máximos estándares de calidad en el barrio de San Blas
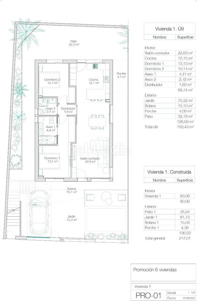
VIVIENDA 2 PLANTA BAJA ( BLOQUE 2 ) // 2 DORMITORIOS Y 2 BAÑOS
CARPINTERIA EXTERIOR
Las carpinterías exteriores estarán compuestas por ventanas y
puerta-ventanas de aluminio lacado blanco con rotura de
puente térmico y doble acristalamiento térmico bajo emisivo con
control solar, con cámara de aire y persianas motorizadas en
balconeras.
CARPINTERIA INTERIOR
Puerta de entrada de seguridad marca Dierre o similar con panel
exterior en aluminio blanco y panel interior madera lacado
blanco.
Puerta corredera vista en salón para separar zona de noche.
Puertas interiores de paso abatibles lacadas en blanco mate.
Puertas interiores correderas con casoneto, lacadas en blanco
mate.
Armarios modulares en dormitorios, con puertas correderas y
abatibles laminadas en madera, estructura e interior forrado,
barra metálica de colgar, estantes y cajoneras.
Composición de muebles de salón con armario para cuadro
eléctrico, mueble TV y estanterías.
CLIMATIZACIÓN Y ACS
Instalación completa por conductos de aire acondicionado y
bomba de calor en toda la casa, excepto en baños.
Sistema de ventilación forzada en baños y cocina.
Agua caliente sanitaria (ACS) mediante aerotermia.
COCINA
Cocina amueblada con muebles altos, bajos y península con
encimera y frentes de Silestone o similar, equipada con placa de
cocción eléctrica, horno eléctrico, campana extractora,
microondas, frigorífico, lavadora, lavavajillas y enfriador de vinos.
Electrodomésticos marca Teka o similar.
ELECTRICIDAD E ILUMINACIÓN
Mecanismos eléctricos de primera calidad de la marca Schneider
modelo D-Life color blanco.
Focos empotrables de techo led para iluminación de toda la
vivienda.
Tira LED en muebles de cocina, TV salón y TV dormitorio.
Colgante sobre península de cocina.
Iluminación exterior en fachada y balcones.
Preinstalación para carga de coche eléctrico.
MULTIMEDIA
Instalación de tomas de televisión y datos según proyecto de
telecomunicaciones.
Instalación de video-portero.
FACHADA
El cerramiento exterior estará compuesto por una fachada
formada por dos hojas de ladrillo, con aislamiento térmico y
acústico en la cara interna y trasdosado de placa de yeso
laminado por el interior. El acabado exterior será enfoscado con
mortero monocapa y ladrillo cara vista a los lados de puerta
principal de vivienda. El monocapa se entregará acabado con
capa de pintura.
SOLADOS Y REVESTIMIENTOS
Solados en toda la vivienda en gres porcelánico de primera
calidad.
Alicatado de gres porcelánico de primera calidad en baños.
Pintura plástica lisa en paramentos horizontales y verticales.
Falso techo de yeso laminado en toda la vivienda.
Falso techo registrable en uno de los baños para registro de la
maquina interior de aire acondicionado.
TABIQUERÍA
Las particiones interiores entre las distintas estancias estarán
formadas por tabiques de placa de yeso laminado a cada lado
con aislamiento térmico y acústico de lana mineral.
JARDÍN
Solados en jardín en gres porcelánico antideslizante de primera
calidad.
Jardinera junto a piscina y en esquina trasera con plantas
mediterráneas y piedra rodada.
Piscina de 4 x 2,5 metros formada con vaso encofrado, ferrallado
y proyectado de hormigón, revestida con mosaico de vidrio.
Instalación de electrólisis salina y 1 foco LED. Preinstalación para
bomba de calor.
Ducha exterior con plato formado por el mismo suelo y grifo en
acero inoxidable.
Zona con césped artificial De Luxe junto a piscina.
Trastero bajo escalera donde se alojará la maquinaria de piscina.
Puerta de acceso para vehículo con apertura automática y
mando a distancia. Puerta peatonal integrada en la puerta
corredera.
Cerramiento de valla de jardín con cristal mate.
ultima modifica
Distribuzione
- 2 stanze
- Superficie 200 m2
- Terrazza 112 m2
- Terreno 200 m2
- 2 bagni
Caratteristiche Generali
- Riscaldamento
- Piscina privata
- Posto auto
- Aria Condizionata
- Anno di costruzione 2025
- Vicino ai trasporti pubblici
Galleria
Ubicazione
Santiago de La Ribera Calle San diego