Favorito y comentario
Casa a schiera in La Font d´en Fargues Barcelona
Caratteristiche principali
- 94 m2
- 4 hab.
- 2 bagni
- 3.298 €/m2
Informazioni dettagliate
GRAN OPORTUNIDAD! CASA PARA REFORMAR CON VISTAS AL MAR Y A LA MONTAÑA
?? Oportunidad casa para reformar con vistas al mar y a la montaña en Barcelona ciudad
¿Buscas una vivienda con carácter, espacio exterior y vistas espectaculares en plena Barcelona? Te presentamos esta casa única situada en el tranquilo y verde barrio de La Font d'en Fargues.
? Características principales:
?? 4 plantas con doble orientación (mar y montaña)
??? 4 habitaciones
?? 2 baños
?? 3 terrazas:
20m² con vistas al mar (ideal para barbacoas)
4,4m² con vistas a la montaña
2,5m² también orientada a la montaña
?? Jardín privado de 15m² con posibilidad de zona chill-out o barbacoa
?? Gran trastero
?? Muchísima luz natural
??? La vivienda necesita reforma integral, aunque las plantas 1 y 2 están en buen estado y habitables, lo que permite entrar a vivir e ir reformando el resto progresivamente.
Importante: La finca presenta aluminosis, y su reparación está contemplada en el precio tan atractivo. Una vez reformada, el potencial de esta casa es enorme.
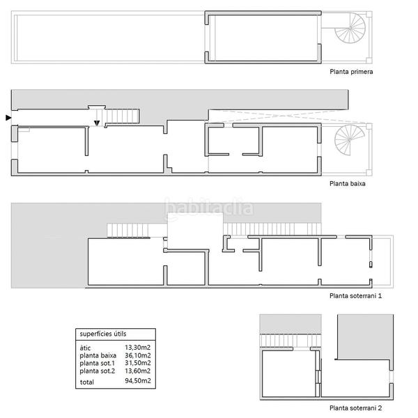
Incluye planos actuales y propuesta de reforma:
Se ha diseñado un proyecto con dos unidades independientes:
?? Dúplex de 3 habitaciones y 2 baños (uno en suite), con:
2 terrazas (20m² y 4,4m²)
Vistas despejadas al mar y a la montaña
?? Estudio independiente con:
1 habitación doble, baño, cocina
Terraza de 2,5m² + jardín de 15m²
Todo con luz natural y vistas verdes
?? Una oportunidad única en Barcelona ciudad:
Espacio exterior privado en 4 niveles
Ideal para vivir y alquilar parte de la casa
Perfecta para inversores o familias que buscan espacio, vistas y tranquilidad dentro de la ciudad
Precio muy por debajo del mercado por las reformas necesarias
?? No dejes pasar esta oportunidad.
Contacta con nosotros para más información, visitas y recibir los planos actuales y la propuesta de distribución.
ultima modifica
Distribuzione
- 4 stanze
- Superficie 94 m2
- Terrazza 40 m2
- 2 bagni
Caratteristiche Generali
- Aria Condizionata
- Anno di costruzione 1960
- Vicino ai trasporti pubblici
Galleria
Ubicazione
La Font d´en Fargues
