Voto Salvato!
Lo vedrai solo tu
Commento salvato!
Aggiungi la tua valutazione e/o un commento per questo annuncio. Lo vedrai solo tu
420.000 € Avvisami se diminuisce
è diminuito 40.000 €

Casa a schiera in Isleta Palmas de Gran Canaria (Las)

  • 231 m2
  • 7 hab.
  • 2 bagni
  • 1.818 €/m2

Su precio 420.000€.

Vilches Gestiones & Servicios presenta una gran oportunidad de inversión o residencia en La Isleta.

Se vende amplia casa terrera con un enorme potencial tanto para inversores como para familias que deseen establecer su residencia habitual en una de las zonas más emblemáticas y con mayor demanda de Las Palmas. Ubicada en el corazón de La Isleta, esta propiedad, distribuida en tres plantas y con acceso a todos los servicios (transporte público, supermercados, farmacias y más), ofrece múltiples posibilidades de reforma y aprovechamiento.

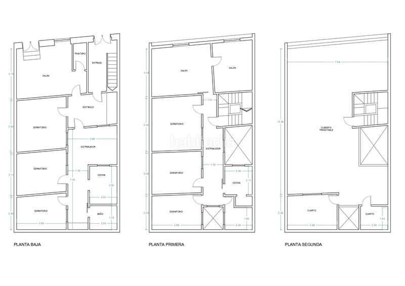
En la planta baja, la vivienda cuenta con una entrada principal que da acceso a un patio interior, un despacho que anteriormente fue utilizado como oficina de abogacía con un altillo ideal para almacenaje, tres dormitorios, una cocina y un baño.
En la planta alta nos encontramos con un luminoso y exterior salón, una habitación adicional también exterior, un pasillo que distribuye tres amplios dormitorios con roperos empotrados, un baño y una cocina. Finalmente, la planta superior dispone de una azotea transitable de generosas dimensiones con un cuarto techado, ideal como trastero, lavadero o incluso como zona de ocio.

La propiedad necesita reformas integrales, lo que la convierte en una excelente opción para personalizar al gusto o desarrollar un proyecto de inversión para alquiler por estancias o residencia multifamiliar. Su ubicación en La Isleta, a escasos minutos de la playa de Las Canteras y rodeada de todos los servicios necesarios, la hace aún más atractiva como vivienda principal o como activo de rentabilidad asegurada.

Gastos de IBI: 413,80€/Año.

Los gastos e impuestos no están incluidos y los datos son orientativos y sujetos a posibles errores u omisiones involuntarias.

No dejes pasar esta oportunidad única de adquirir una casa terrera con carácter y muchas posibilidades en una zona en constante crecimiento.

ultima modifica

Distribuzione

  • 7 stanze
  • Superficie 231 m2
  • 2 bagni
  • Cucina abitabile: No

Caratteristiche Generali

  • Senza posto auto
  • ammobiliato
  • Senza aria condizionata
  • Anno di costruzione 1932
  • Certificato energetico :
    Consumo:
    G
    999 kW h m2 / año
    Emisiones:
    G
    999 kg CO2 m2 / año
Annuncio: 34708000001445

Ubicazione

Isleta Calle Bentaguayre

Naviga per la mappa cliccandoci sopra
420.000 € Prezzo dell´annuncio
4.073 €/m2€/m2 distrito
1.818 €/m2€/m2 dell´annuncio
55% più economico della media*
Vedi evoluzione €/m2 in Palmas de Gran Canaria (Las) (Isleta - Puerto - Guanarteme)
Ti avvisiamo quando abbiamo un annuncio come questo? Crea il tuo avviso e noi ti avvertiremo per posta elettronica quando ci saranno annunci nuovi o se saranno modificati
 

Contatta VILCHES GESTIONES & SERVICIOS, S.L.

Codice rif. annuncio habitaclia/VG-NV-108322606:

Vedrai il telefono dopo aver inviato il tuo contatto all’annunciante di modo che ti può rispondere.
Vedrai il telefono dopo aver stabilito il contatto
Inviando...