Voto Salvato!
Lo vedrai solo tu
Commento salvato!
Aggiungi la tua valutazione e/o un commento per questo annuncio. Lo vedrai solo tu
1.028.000 € Avvisami se diminuisce
è diminuito 20.000 €

Casa a schiera con riscaldamento parcheggio in Pasaia

San Pedro Kalea

  • 241 m2
  • 4 hab.
  • 2 bagni
  • 4.266 €/m2

¿Se imagina dormir mecido por el susurro del mar? Vivienda unifamiliar adosada en el embarcadero de San Pedro

LA VIVIENDA

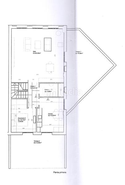
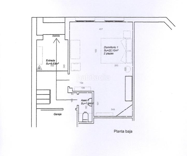
Espectacular vivienda unifamiliar adosada (SEGREGABLE), en esquina, en Pasai San Pedro junto al embarcadero. 186 m2 construidos (158,64 m2 útiles) de vivienda + terraza de 30 m2 con vistas al mar y con tres orientaciones + terraza trasera de 25,80m2 + plaza de garaje + pequeño taller. La superficie se distribuyen en tres plantas de la siguiente manera:

Planta baja, 71,50 m2; entrada, habitación, aseo, garaje y taller.
Planta primera 84,50 m2; habitación con acceso a terraza trasera, cocina con acceso a las dos terrazas, baño completo y amplio salón con vistas al mar y acceso directo a la terraza principal. Dos terrazas.
Planta segunda bajo cubierta, 24,50 m2; Dos habitaciones con vistas al mar y al puerto y un baño completo con plato de ducha y amplio velux. Además cuenta con un amplio espacio de almacenaje aprovechado bajo la caída de cubierta con puertas a medida.
Se trata una casa moderna construida en 2004, con materiales de primera calidad y perfectamente aislada y preparada para su ubicación, que cuenta con calefacción y agua caliente de gas natural con caldera mixta para agua caliente y fría. Carpintería exterior de madera de Iroko, acristalamiento doble tipo Climarit con rotura de puente térmico. Contraventanas de madera de Iroko también. Suelo de tarima de Jatoba. Escaleras y barandilla en madera de Iroko barnizada.

Un lujo de vivienda que enamora a toda persona que entra en ella no solo por la casa sino por su ubicación, lo que la convierte en una vivienda única, enclavada en un marco exclusivo de belleza y valor natural incalculable.

*Posibilidad de segregación de la planta baja y destinarla a local comercial para desarrollar una actividad o como vivienda independiente.

EL ENTORNO

Si algo hace exclusiva a esta vivienda es su ubicación. Posibilidad de solicitar pantalán en el embarcadero. En plena bocana del puerto natural de Pasajes y a los pies de los montes Jaizkibel y Ulia. Ideal para hacer senderismo por cualquiera de los dos montes, visitar el faro de la plata, o simplemente darse un paseo por la bahía junto al mar y visitar el museo astillero Albaola. Un entorno único rodeado de naturaleza (mar y monte). Un pequeño paraíso natural a 5 kilómetros de San Sebastián, Donostia.

¿Se imagina dormir mecido por el susurro del mar?

Contacte con nosotros si desea más información o concertar una visita. ¡ Le enamorará!

ultima modifica

Distribuzione

  • 4 stanze
  • Superficie 241 m2
  • Terrazza 30 m2
  • 2 bagni
  • Cucina abitabile
  • ripostiglio

Caratteristiche Generali

  • Riscaldamento
  • Posto auto
  • ammobiliato
  • Senza aria condizionata
  • Anno di costruzione 2004
  • Vicino ai trasporti pubblici
  • Certificato energetico :
    Consumo:
    E
    298 kW h m2 / año
    Emisiones:
    E
    63 kg CO2 m2 / año
Annuncio: 32673000000079

Ubicazione

San Pedro Kalea

Naviga per la mappa cliccandoci sopra
1.028.000 € Prezzo dell´annuncio
3.036 €/m2€/m2 población
4.266 €/m2€/m2 dell´annuncio
Vedi evoluzione €/m2 in Pasaia
Ti avvisiamo quando abbiamo un annuncio come questo? Crea il tuo avviso e noi ti avvertiremo per posta elettronica quando ci saranno annunci nuovi o se saranno modificati
 

Contatta Siete Puertas Inmobiliaria

Codice rif. annuncio habitaclia/2502_309:

Vedrai il telefono dopo aver inviato il tuo contatto all’annunciante di modo che ti può rispondere.
Vedrai il telefono dopo aver stabilito il contatto
Inviando...