Voto Salvato!
Lo vedrai solo tu
Commento salvato!
Aggiungi la tua valutazione e/o un commento per questo annuncio. Lo vedrai solo tu

Casa a schiera con piscina in Monte y Mar Santa Pola

  • 164 m2
  • 3 hab.
  • 2 bagni
  • 3.476 €/m2

Esta villa de obra nueva se encuentra en la exclusiva zona de Gran Alacant (Santa Pola, Alicante).
Las viviendas de esta promoción ofrecen superficies desde 211 m², distribuidas en amplio salón-comedor, cocina moderna, de 2 a 5 dormitorios y de 2 a 3 baños, pensadas para disfrutar del máximo confort y elegancia.
Características principalesSuperficie construida: desde 211 m²Parcela: desde 215 m²Dormitorios: 2 a 5Baños: 2 o 3Piscina privadaGaraje incluido en el precioTerraza y jardínPreinstalación de aire acondicionado por conductosEntrega prevista: 2026Diseño y confort
Este exclusivo conjunto residencial redefine el lujo contemporáneo en la Costa Blanca. Cada villa combina arquitectura moderna, amplitud de espacios y acabados de primera calidad, creando un hogar donde la luz natural es protagonista.
Las viviendas están diseñadas para ofrecer un equilibrio perfecto entre estética, eficiencia energética y bienestar, integrando materiales de alta gama y una distribución funcional que conecta interior y exterior con armonía.
Ubicación privilegiada
Las villas se encuentran en Gran Alacant, una de las zonas más deseadas de la Costa Blanca, por su entorno natural, sus playas y su excelente comunicación.
Muy cerca encontrarás:
Playas de arena fina y aguas cristalinasSupermercados y centro comercialColegios y servicios esencialesAcceso rápido al centro de Santa Pola y al Aeropuerto de Alicante-Elche
Una ubicación ideal para quienes buscan calidad de vida, confort y proximidad al mar durante todo el año.
Precio y disponibilidadDesde 566.000 €, según superficie, extras y características particulares de cada vivienda.Varias unidades disponibles.

ultima modifica

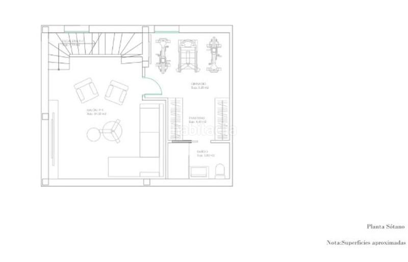
Distribuzione

  • 3 stanze
  • Superficie 164 m2
  • Terreno 216 m2
  • 2 bagni

Caratteristiche Generali

  • Piscina privata
  • Certificato energetico :
    Consumo:
    G
    999 kW h m2 / año
    Emisiones:
    G
    999 kg CO2 m2 / año
Annuncio: 55161000003163

Ubicazione

Monte y Mar

Naviga per la mappa cliccandoci sopra
570.000 € Prezzo dell´annuncio
3.222 €/m2€/m2 distrito
3.476 €/m2€/m2 dell´annuncio
Quanto ti piacerebbe pagare?
Vedi evoluzione €/m2 in Santa Pola (Gran Alacant)
Ti avvisiamo quando abbiamo un annuncio come questo? Crea il tuo avviso e noi ti avvertiremo per posta elettronica quando ci saranno annunci nuovi o se saranno modificati
 

Contatta Inmobilia Hacknei

Codice rif. annuncio habitaclia/319564 [COMPLEX: 319094]:

Vedrai il telefono dopo aver inviato il tuo contatto all’annunciante di modo che ti può rispondere.
Vedrai il telefono dopo aver stabilito il contatto
Inviando...