Voto Salvato!
Lo vedrai solo tu
Commento salvato!
Aggiungi la tua valutazione e/o un commento per questo annuncio. Lo vedrai solo tu
Opportunità 475.000 € Avvisami se diminuisce

Casa a schiera in molí 46 in Roca del Vallès (La)

Molí 46

  • 196 m2
  • 4 hab.
  • 3 bagni
  • 2.423 €/m2

Venta de chalet adosado en La Roca del Vallès

PROYECTO CASA ADOSADA DE OBRA NUEVA en VENTA en LA ROCA DEL VALLÈS – Santa Agnès de Malanyanes (Vallès Oriental – BCN):
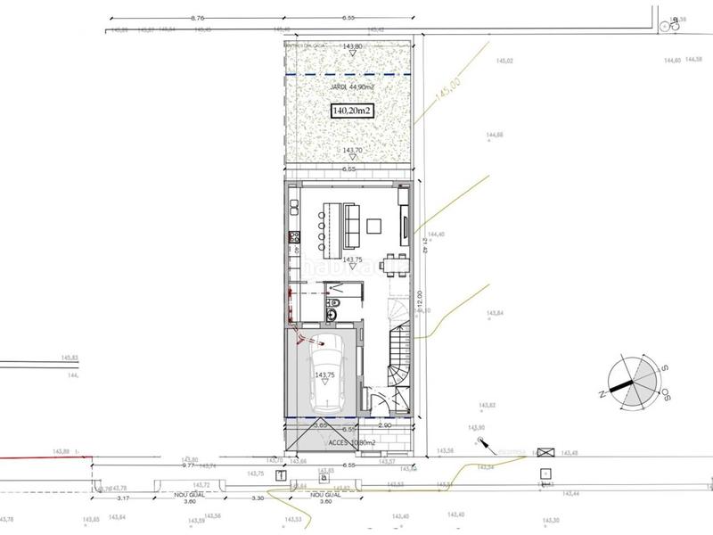
Inicio de construcción desde 25-6-2024, vivienda unifamiliar adosada de 196,50 m² construidos, distribuida en 3 plantas y con 4 habitaciones dobles, una de ellas en suite, 3 baños, patio - jardín, garaje para un vehículo y 2 terrazas. Con instalación de paneles solares y Aerotermia. Máxima calificación energética de consumo y emisiones A, y con posibilidad de ascensor, preinstalación para coche eléctrico y piscina.
Excelente ubicación centro pueblo, en un entorno residencial. A 4 minutos de la autopista AP-7 y C-35, y 5 minutos del Centro Comercial La Roca Village.

La distribución en planta baja, tenemos el garaje para un vehículo y un recibidor desde el que se accede a la planta 1ª mediante escalera, y un baño. Al fondo encontramos el salón estar-comedor-cocina y un lavadero al que se accede desde la zona de cocina. Desde el salón-comedor-cocina, se puede acceder al patio – jardín privado de la finca. Una vez en la 1ª planta, tenemos un distribuidor que comunica con 3 dormitorios dobles y un baño completo. En el distribuidor, disponemos de una escalera para subir a la siguiente planta, bajo cubierta con una suite con baño y vestidor con salida a dos terrazas. Orientación Sureste.

Características Técnicas:
Superficie total 196,5 m², chalet adosado superficie solar 140,2 m², superficie útil 146,4 m², 4 habitaciones dobles: 13 m². -17,80 m². -12,60 m². Suite de 15,90 m² + Vestidor 4,25 m². 3 baños: 3-4-4 Pcs. Ducha-D.-D. 3,45 m². -8,70 m². -4,80 m². Parcela de ancho: 6,55 m, fondo: 21,42 m. Cocina equipada (Campana, horno, micro integración, placa inducción y lavaplatos integración), abierta a sala comedor estar, de 29,20 m². Garaje 15,75 m². Jardín de 44,90 m². Lavadero 3,55 m². 2 terrazas de 24,05 m², -11,55 m². Calefacción Eléctrica + A/Ac. de Aerotermia por conductos. Preinstalación de Chimenea. Carpintería exterior aluminio negro mate, vidrios dobles Climalit. Carpintería interior madera lacada en blanco. Suelos: gres porcelánico 75 x 75 Ctms. y parquet flotante AC5, parafina 4 cantos anclaje Unilinc, hidrófugo, antiestático e ignífugo. Urbanizado. Alumbrado. Asfaltado.


ultima modifica

Distribuzione

  • 4 stanze
  • Superficie 196 m2
  • Terreno 140 m2
  • 3 bagni
  • Lavanderia

Caratteristiche Generali

  • Riscaldamento
  • Posto auto
  • Aria Condizionata
  • Anno di costruzione 2024
  • Certificato energetico :
    Consumo:
    A
    15 kW h m2 / año
    Emisiones:
    A
    2 kg CO2 m2 / año
Annuncio: 44065000000241

Ubicazione

Molí 46

Naviga per la mappa cliccandoci sopra
475.000 € Prezzo dell´annuncio
2.540 €/m2€/m2 población
2.423 €/m2€/m2 dell´annuncio
5% più economico della media*
Vedi evoluzione €/m2 in Roca del Vallès (La)
Ti avvisiamo quando abbiamo un annuncio come questo? Crea il tuo avviso e noi ti avvertiremo per posta elettronica quando ci saranno annunci nuovi o se saranno modificati
 

Contatta PARTICULAR IMMOBILIÀRIA FINANCERA

Codice rif. annuncio habitaclia/001969:

Vedrai il telefono dopo aver inviato il tuo contatto all’annunciante di modo che ti può rispondere.
Vedrai il telefono dopo aver stabilito il contatto
Inviando...