Favorito y comentario
Casa bifamiliare in Centre Sabadell
Caratteristiche principali
- 100 m2
- 4 hab.
- 1 bagno
- 2.690 €/m2
Informazioni dettagliate
Casa tipo inglesa a un paso de la misma Rambla
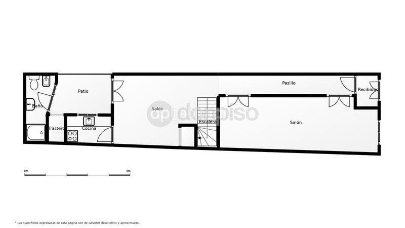
CASA TIPO INGLESA A UN PASO DE LA MISMA RAMBLA. Oportunidad única en el corazón de Sabadell, esta casa adosada se presenta como una joya con un enorme potencial para ser transformada en el hogar de tus sueños. Con una distribución funcional y espacios bien iluminados, esta propiedad de 104 m² te ofrece una base ideal para llevar a cabo una rehabilitación integral, adaptándola a tu propio estilo y necesidades.
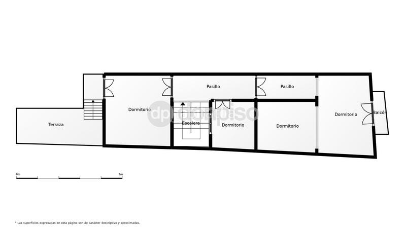
La vivienda cuenta con tres habitaciones dobles, todas exteriores, lo que garantiza una luminosidad natural en toda su extensión. La habitación principal tiene acceso directo a una terraza, convirtiéndola en un espacio privilegiado para disfrutar del aire libre y crear tu propio oasis urbano. Además, la tercera habitación es perfecta para ser utilizada como estudio, habitación de invitados o incluso un cuarto infantil. También dispone de una habitación simple que ventila hacia la escalera interior, optimizando el espacio y la funcionalidad.
El comedor, con salida a un patio, se convierte en el lugar ideal para disfrutar de reuniones familiares o con amigos. Este patio tiene la posibilidad de ampliarse hasta 10-12 m² aproximadamente, lo que te permitirá abrir más opciones de uso y diversión en tus momentos de ocio. La cocina, que necesita una renovación, es una opción emocionante para rediseñar a tu gusto y convertirla en un espacio acogedor y moderno. En cuanto al baño, también se encuentra para reformar, lo que brinda la oportunidad de crear un ambiente relax y funcional. Un lavadero adicional y un pasillo que distribuye eficientemente los espacios completan esta interesante propuesta.
Cada rincón de esta casa refleja el encanto de su estilo inglés clásico, con una distribución que fomenta la convivencia y el confort. La escalera interior conduce a la planta superior, donde se pueden ubicar las habitaciones, creando un ambiente de privacidad y tranquilidad. Además, la casa cuenta con una agradable terraza de 6 m² que te permitirá disfrutar de la vida al aire libre sin salir de tu hogar.
La ubicación es, sin duda, uno de los puntos más fuertes de esta propiedad. Situada en pleno centro de Sabadell, a escasa distancia de la Rambla, tendrás acceso inmediato a una amplia variedad de servicios y actividades. La zona se caracteriza por su animada vida urbana, con numerosos mercados, comercios locales, cafeterías y restaurantes que te invitan a descubrir la gastronomía local. Para las familias, hay colegios y jardines de infancia en la proximidad, lo que representa una gran ventaja para quienes buscan un buen entorno educativo para sus hijos.
En cuanto a los medios de transporte, la ubicación es inmejorable. La cercanía a estaciones de tren y autobuses garantiza una comunicación fluida con el resto de Barcelona y sus alrededores. Así, podrás desplazarte sin complicaciones, ya sea por motivos de trabajo o ocio. Además, las vías principales y carriles bici conectan esta zona con el resto de la ciudad, favoreciendo un estilo de vida activo y cómodo.
En definitiva, esta casa tipo inglesa a un paso de la misma Rambla es una inversión excepcional, tanto para vivir como para alquilar. No pierdas la oportunidad de crear un hogar que refleje tu estilo personal y disfrutar de la vibrante vida que ofrece el centro de Sabadell. Este inmueble, con sus características únicas y su ubicación privilegiada, está esperando por ti. ¡Ven a visitarlo y empieza a visualizar tu nuevo hogar en esta maravillosa ciudad! ( El PVP indicado no incluye impuestos ni gastos de Escritura ).
PARA PROPIETARIOS:
1.¿Necesitas vender para comprar? donpiso puede comprar tu casa entregándote el 10% en 48 horas y el resto ante Notario.
2. ¿Problemas económicos? Te ayudamos entregándote una cantidad pactada cada mes mientras vendemos tu casa. Sin gastos de ningún tipo.
3. ¿Vendes un piso con hipoteca? mientras gestionamos la venta, te adelantamos la cuota mensual.
4. ¿Reformas? al mejor precio y te las financiamos dentro de la hipoteca.
5. ¿La mejor hipoteca? en donpiso la encuentras y con condiciones preferentes.
6. ¿Herencias y divorcios? te ayudamos y coordinamos todo.
Infórmate:
ultima modifica
Distribuzione
- 4 stanze
- Superficie 100 m2
- 1 bagno
Caratteristiche Generali
Galleria
Ubicazione
Centre
