Voto Salvato!
Lo vedrai solo tu
Commento salvato!
Aggiungi la tua valutazione e/o un commento per questo annuncio. Lo vedrai solo tu

Chalet in calle 373 in La Cañada Paterna

  • 210 m2
  • 4 hab.
  • 3 bagni
  • 3.262 €/m2

OBRA NUEVA en La Cañada

Descubre el privilegio de vivir rodeado de tranquilidad y exclusividad a menos de 16 km del centro de Valencia en esta urbanización de 4 chalets, de los cuales solo quedan 2 disponibles. Un oasis de confort con espectaculares vistas al Parque Natural de La Vallesa, donde la armonía entre diseño y naturaleza se convierte en una experiencia única.

Entrega a finales del 2025 – Obra nueva

??Forma de pago cómoda: 10% en arras y el resto al finalizar la obra??

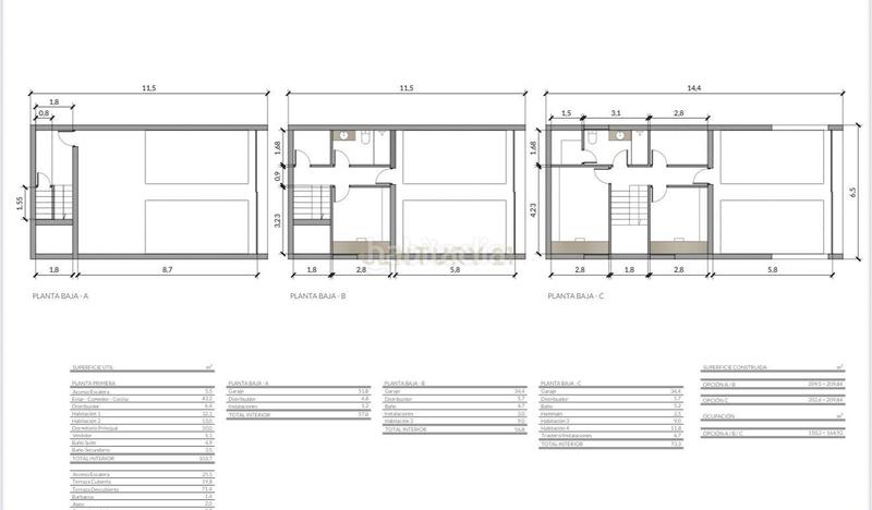
Cada chalet está ubicado en una parcela de entre 407 m² y 420 m², diseñados para adaptarse a tu estilo de vida con la posibilidad de personalización total.

Diseño a medida
Cada vivienda se distribuye en dos plantas, con opciones de diseño exclusivas:
- Planta baja: Tres propuestas diferentes, desde un espacio diáfano hasta configuraciones con dormitorios o mixto. Personaliza el diseño a tu gusto
- Planta primera: Amplio salón con cocina office, tres dormitorios, suite principal con baño y vestidor, baño adicional y acceso a una terraza privada con jardín y piscina individual

Calidades de primera
- Piscina con sistema de depuración y cloración salina
- Aerotermia para agua caliente y climatización eficiente
- Aire acondicionado por conductos con bomba de calor
- Cocina totalmente equipada con muebles altos y bajos, encimera porcelánica y acabados de lujo
- Carpintería exterior con doble acristalamiento y puertas interiores lacadas en blanco mate

Extras personalizables
Eleva tu hogar con opciones a medida como:
- Suelo radiante para mayor confort
- Sistema fotovoltaico de generación de energía
- Climatización para la piscina
- Domotización y sistema de alarma

Ubicación privilegiada
Situada en La Cañada, Paterna, esta promoción te conecta con Valencia en minutos gracias a la pista de Ademuz y cuenta con acceso rápido a centros educativos, deportivos y comerciales, como el centro comercial El Osito. Además, dispone de excelente conexión de metro, convirtiéndola en una opción ideal para quienes buscan un entorno natural y seguro sin renunciar a las comodidades urbanas.

Modernidad, amplitud y exclusividad te esperan!
Haz de este hogar tu refugio ideal. Consulta disponibilidad y ven a conocer tu futuro hogar.

ultima modifica

Distribuzione

  • 4 stanze
  • Superficie 210 m2
  • Terreno 420 m2
  • 3 bagni

Caratteristiche Generali

  • Piscina privata
  • Posto auto
  • Anno di costruzione 2025
  • Certificato energetico :
    Consumo:
    G
    999 kW h m2 / año
    Emisiones:
    G
    999 kg CO2 m2 / año
Annuncio: 34268000005209

Ubicazione

La Cañada Calle 373, La Canyada, Spain

Naviga per la mappa cliccandoci sopra
685.000 € Prezzo dell´annuncio
2.373 €/m2€/m2 población
3.262 €/m2€/m2 dell´annuncio
Quanto ti piacerebbe pagare?
Vedi evoluzione €/m2 in Paterna
Ti avvisiamo quando abbiamo un annuncio come questo? Crea il tuo avviso e noi ti avvertiremo per posta elettronica quando ci saranno annunci nuovi o se saranno modificati
 

Contatta CENTURY 21 LIBERTY HOME

Codice rif. annuncio habitaclia/0099-00968:

Vedrai il telefono dopo aver inviato il tuo contatto all’annunciante di modo che ti può rispondere.
Vedrai il telefono dopo aver stabilito il contatto
Inviando...