Voto Salvato!
Lo vedrai solo tu
Commento salvato!
Aggiungi la tua valutazione e/o un commento per questo annuncio. Lo vedrai solo tu
Opportunità 299.000 € Avvisami se diminuisce
è diminuito 21.000 €

Fondo rustico in Felanitx poble Felanitx

N/A

  • 29.003 m2
  • 10 €/m2

Terreno urbanizable con licencia en Felanitx

En Son Xot, 07209 Felanitx

¡Oportunidad única para construir la casa de tus sueños!

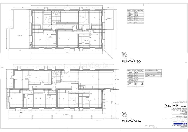
Terreno urbanizable con licencia concedida en octubre de 2024, listo para edificar una espectacular vivienda unifamiliar, tipo casa rústica.
Con casi 30.000 m² de superficie, este amplio terreno ofrece una ubicación privilegiada: a tan solo 1 km del núcleo urbano, con todos los servicios a tu alcance, pero con la tranquilidad y el espacio que solo el entorno natural puede ofrecer.

- Uso residencial unifamiliar aprobado
- Superficie edificable de 456 m², con posibilidad de construir hasta 2 plantas
- Acceso por camino
- Distribución interior totalmente personalizable

Ideal para quienes buscan privacidad, amplitud y la posibilidad de diseñar una vivienda exclusiva en una zona en crecimiento. No dejes pasar esta oportunidad de inversión con gran potencial de revalorización.

ultima modifica

Distribuzione

  • Superficie 29003 m2
Annuncio: 56023000000002

Ubicazione

Felanitx Poble N/A

Naviga per la mappa cliccandoci sopra
Ti avvisiamo quando abbiamo un annuncio come questo? Crea il tuo avviso e noi ti avvertiremo per posta elettronica quando ci saranno annunci nuovi o se saranno modificati
 

Contatta Residencial Mobel International, Sl

Codice rif. annuncio habitaclia/Felanitx:

Vedrai il telefono dopo aver inviato il tuo contatto all’annunciante di modo che ti può rispondere.
Vedrai il telefono dopo aver stabilito il contatto
Inviando...