Voto Salvato!
Lo vedrai solo tu
Commento salvato!
Aggiungi la tua valutazione e/o un commento per questo annuncio. Lo vedrai solo tu

Fondo rustico in Los Pinos Algeciras

  • 4.627 m2
  • 184 €/m2

OPORTUNIDAD URBANÍSTICA EN ALGECIRAS AVDA. LAS FLORES

OPORTUNIDAD URBANÍSTICA EN ALGECIRAS – AVDA. LAS FLORES

Solar Urbano No Consolidado | Uso Residencial Unifamiliar y Colectiva | Estudio de Anteproyecto para 27 Viviendas (No Tramitado)
Se ofrece en venta este suelo urbano no consolidado situado en Avenida de las Flores 138-140, Algeciras, en la Subzona 4.2 "Huerta Las Pilas", con clasificación para uso residencial unifamiliar en hilera o colectiva en bloque horizontal.
El terreno tiene una superficie de 4.627 m2 y una edificabilidad máxima computable de 5.691 m2t.
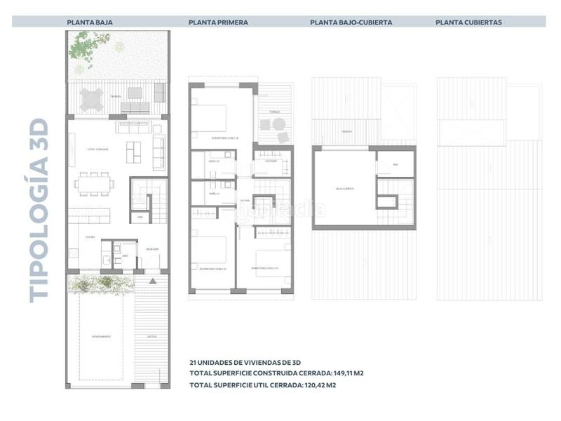
Se ha elaborado un estudio de anteproyecto (no tramitado ante el Ayuntamiento y sin carácter vinculante) con una posible distribución de 27 viviendas unifamiliares, compuesta por:
?? 20 viviendas de 3 dormitorios (149,11 m2)
?? 6 viviendas de 4 dormitorios (158,20 m2)
?? 1 vivienda unifamiliar adicional
?? Superficie construida estimada: 4.080,51 m2
?? 1 plaza de garaje en superficie por vivienda
Condiciones urbanísticas clave:
? Uso dominante: Residencial Unifamiliar/Colectiva
? Altura máxima: 7 m (B+1 + torreón de 10 m2 no computable)
? Ocupación: 30% desde paralela a fachada (planta baja) y 75% en planta alta
? Retiro: Alineación a vial
? Parcela mínima: 100 m2 (unifamiliar) / 400 m2 (colectiva)
? Fachada mínima: 6 m / 24 m
? 1 sótano bajo rasante permitido para garajes
? 1 plaza de aparcamiento por vivienda
?? Excelente ubicación en zona residencial en expansión, próxima a centros educativos, supermercados, zonas verdes y conectada con las principales vías de acceso de Algeciras.
?? Referencia Catastral: 8436416TF7083N0001LD y 8436415TF7083N0001PD

Para más información o visita sobre este inmueble o alguno de los que disponemos en nuestra cartera, no duden en ponerse en contacto conmigo bien llamando o vía WhatsApp en el ?? +. También pueden escribirme a y le responderemos a la mayor brevedad posible.

Nuestro equipo de Terciario y Suelo está formado por profesionales y técnicos especializados que le podrán orientar y ayudar en encontrar el inmueble que busca.

VISITE SIN COMPROMISO. 0% comisión a compradores para este activo. Ikesa informa que no cobra comisión de ningún tipo por inmuebles procedentes de Entidades Financieras, Fondos de Inversión, así como producto de Obra Nueva.

De acuerdo con lo prevenido en el Decreto 218/2005, de 11 de octubre, se informa al cliente que los Gastos Notariales, Registrales, Impuesto de Transmisiones (ITP) o IVA, Honorarios de Intermediación, Gastos Financieros, y otros gastos inherentes a la compraventa no están incluidos en el precio.

Ikesa es agencia homologada de diferentes Entidades Financieras y Privadas. Disponemos de la mayor oferta de la provincia, visite nuestra web

#SolarEnVenta #SueloResidencial #InversiónUrbanística #OportunidadPromoción #Algeciras #DesarrolloInmobiliario #HuertaLasPilas #Subzona42 #SueloUrbano #AnteproyectoNoVinculante #PromotoresInmobiliarios #InversoresPrivados

ultima modifica

Distribuzione

  • Superficie 4627 m2
Annuncio: 24308000046599

Ubicazione

Los Pinos

Naviga per la mappa cliccandoci sopra
Ti avvisiamo quando abbiamo un annuncio come questo? Crea il tuo avviso e noi ti avvertiremo per posta elettronica quando ci saranno annunci nuovi o se saranno modificati
 

Contatta IKESA.

Codice rif. annuncio habitaclia/CA16300062:

Vedrai il telefono dopo aver inviato il tuo contatto all’annunciante di modo che ti può rispondere.
Vedrai il telefono dopo aver stabilito il contatto
Inviando...