Favorito y comentario
Fondo rustico in port d´Andratx Andratx
Caratteristiche principali
- 1.492 m2
- 1.408 €/m2
Informazioni dettagliate
Parcela edificable con licencia en venta en Puerto Andratx, suroeste de Mallorca
Esta excepcional oportunidad en Port Andratx presenta una de dos parcelas edificables contiguas a la venta. Con una superficie construible de aproximadamente 420 m², esta parcela ofrece una oportunidad para desarrollar una villa de lujo en una de las ubicaciones más exclusivas de la isla.
La parcela tiene una extensión aproximada de 1.270 m² y cuenta con licencia de obra válida y aprobada, lo que permite el inicio inmediato de la construcción de una vivienda contemporánea diseñada para optimizar el generoso espacio disponible.
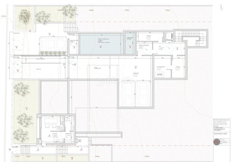
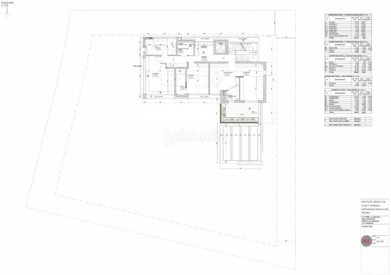
El proyecto aprobado incluye un diseño sofisticado con sótano que alberga garaje, cuartos técnicos y amplias zonas de almacenamiento.
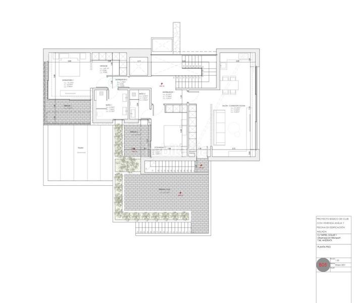
La planta baja ofrece amplias zonas de estar que se abren a grandes terrazas y una piscina que varía entre 59 y 96 m².
En la planta superior, la villa disfruta de impresionantes vistas al mar, con acceso directo a más terrazas y a una azotea diseñada como zona chill-out.
Un anexo completa la vivienda, ideal como casa de invitados o zona privada de ocio.
La parcela puede adquirirse individualmente o junto con la parcela vecina, cada una con un precio de €, incluyendo la licencia de obra aprobada. Esta parcela exclusiva representa una excelente oportunidad de inversión o compra privada para quienes deseen construir una vivienda de lujo en una de las zonas más deseadas y tranquilas de Mallorca, con la construcción lista para comenzar de inmediato.
Puerto de Andratx es uno de los puertos más espectaculares de Mallorca, con varias playas a su alrededor tales como Cala Llamp, Cala Egos y Cala Moragues, y sin duda aquí es donde se encuentran las propiedades más lujosas de la isla. El club náutico de Andratx es uno de los mejor equipados de todas las Islas Baleares. En el muelle siempre podrá comprar pescado fresco. A lo largo de la costa puede encontrar gran variedad de boutiques y restaurantes con terrazas donde se abren fantásticas vistas al mar.
Para obtener más información, póngase en contacto con BALEARIC PROPERTIES ESTATE AGENTS MALLORCA por correo electrónico o llame a la oficina de Puerto Portals ( Ver más detalles sobre otros Terrenos en Puerto Andratx o solicite información para comprar un terreno en Puerto Andratx.
"Balearic Properties ha estado en el sector de inmobiliaria durante muchos años. La sede de la compañía está en Mallorca y con los años, hemos acumulado una incomparable cartera de propiedades para todos los presupuestos, por medio de la cual hemos ayudado con éxito a 10.000 clientes a encontrar su nuevo hogar en las Baleares. Nuestras empresas de gestión de proyectos y construcción ofrecen una gama única de villas ""llave en mano"" lujosas para satisfacer todas las necesidades individuales y personales. También ofrecemos más de 200 villas vacacionales que garantizan a nuestros clientes una experiencia inolvidable.
Balearic Properties es el socio exclusivo de Savills en Mallorca. La empresa ofrece a los clientes una gran experiencia de más de 20 años en el mercado inmobiliario local. Nuestra cartera incluye todo tipo de villas modernas, casas de campo y nuevos desarrollos que están de moda en las mejores zonas de Mallorca. Balearic Properties también se especializa en propiedades de primera linea al mar y grandes propiedades. La empresa ofrece un servicio completo de propiedades que incluye administración de propiedades, alquileres de vacaciones, administración de proyectos y servicios legales."
ultima modifica
Distribuzione
- Superficie 1492 m2
Galleria
Ubicazione
Port D´Andratx
