Favorito y comentario
Locale commerciale in franco belga kalea 17 in Lasesarre Barakaldo
Caratteristiche principali
- 111 m2
- 2 bagni
- 5.387 €/m2
Informazioni dettagliate
Local de hostelería totalmente equipado en la mejor zona de Urban, junto a la Ría y en zona peatonal.
donpiso Barakaldo ofrece excelente oportunidad de negocio.
Espectacular local de hostelería totalmente equipado y situado en la mejor zona del barrio de Urban, junto al nuevo parque Zamalanda.
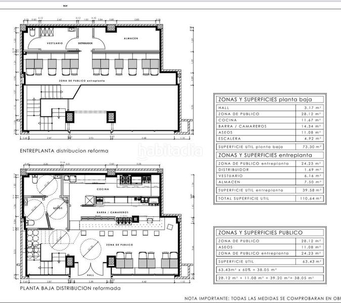
Cuenta con licencia de hostelería para Bar-Restaurante y su superficie de casi 111 m² esta distribuida en dos plantas.
Barra, cocina y dos aseos adaptados a personas con movilidad reducida, además de un almacén se encuentran en planta baja y en la planta superior están el comedor, almacén y vestuarios del personal.
Cuenta con todo el equipamiento necesario para su actividad.
Cocina industrial de 3 fuegos, neveras, plancha, freidora industrial, horno, arcones, campana extractora, etc.
Zona de frío con neveras bajo mostrador, máquina de café.
Asimismo, tiene salida de humos, climatización de aire por conductos y sistema de alarma.
Este establecimiento se encuentra perfectamente acondicionado y el diseño y la iluminación crean un ambiente agradable y relajante.
Cuenta con capacidad para 28 comensales y terraza de 18 mesas en un espacio urbano y agradable que ofrece un lugar al aire libre a los clientes.
Local óptimo para la actividad a la que está enfocado en un barrio en continuo crecimiento con una clientela consolidada.
Oportunidad única para inversores y/o restauradores que busquen un negocio de alta rentabilidad.
Si desean ver fotos del local pueden pasar por inmobiliaria donpiso en la calle Juan de Garay número 4.
ultima modifica
Distribuzione
- Superficie 111 m2
Caratteristiche Generali
- Riscaldamento
- ammobiliato
- Aria Condizionata
Galleria
Ubicazione
Lasesarre Franco Belga Kalea 17
