Favorito y comentario
Locale commerciale in Agra del Orzán - Ventorrillo Coruña (A)
Caratteristiche principali
- 1.150 m2
- 2 bagni
- 609 €/m2
Informazioni dettagliate
SE VENDE BAJO COMERCIAL DE 911 M2 EN LA CORUÑA.
Actualmente dedicado a garaje en su mayor parte con 1000 m2 y 44 plazas actualmente alquiladas, con entrada y salida por dos calles y dos locales comerciales de 60 m2 y 97 m2 también en arrendamiento.
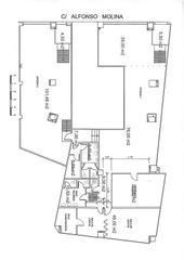
El inmueble dispone de fachada a dos calles con entrada rodada por ambas y un local comercial con fachada a cada una de ellas, Alfredo Tella y Monasterio de Toxos, perpendiculares ambas a la Ronda de Outeiro, cercanas a la conexión del centro de la ciudad con la tercera ronda, y próximas a los principales centros comerciales de la ciudad.
Con la totalidad de sus 1.150 m2 en planta baja y su dos fachadas, admite cualquier tipo de uso, admás dispone de luces a cenitales a patios propios y de edificio.
Se vende por un precio de 700.000 €
ultima modifica
Distribuzione
- Superficie 1150 m2
Caratteristiche Generali
- Senza aria condizionata
- Anno di costruzione 1977
Galleria
Ubicazione
Agra del Orzán - Ventorrillo Rúa Alfredo Tella
