Favorito y comentario
Monolocale in Zarzaquemada Leganés
Caratteristiche principali
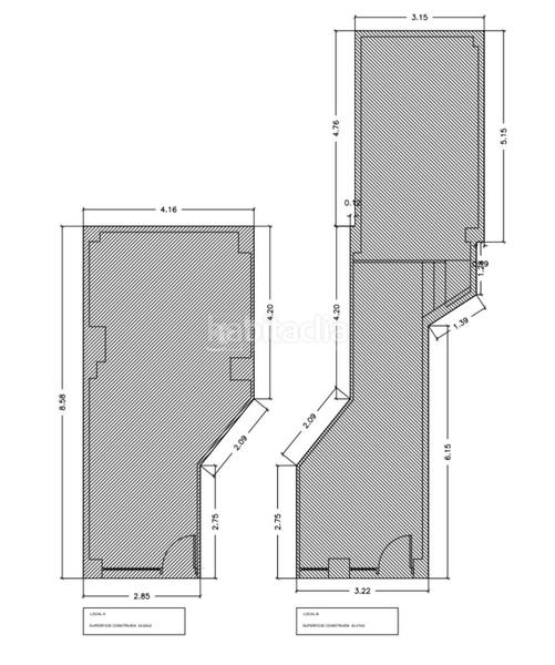
- 33 m2
- 1 hab.
- 1 bagno
- 4.303 €/m2
Informazioni dettagliate
Piso en venta en Leganés
Agencia inmobiliaria de LEGANÉS zona ZARZAQUEMADA - AVENIDA REY JUAN CARLOS I Oficina Tecnocasa
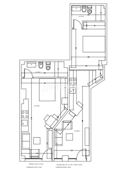
Comercializamos en exclusiva la venta de vivienda tipo estudio compuesta por ambiente para dormitorio y salon-cocina con cuarto de baño completo (142.000€)
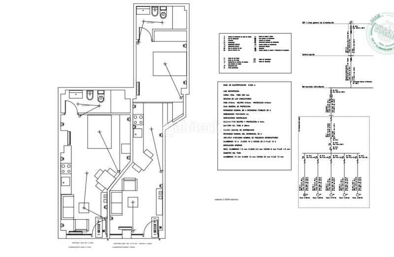
El local ha sido adaptado para cumplir con todas las normas de habitabilidad como vivienda. Se esta realizando una adecuacion completa en todas las instalaciones: electricidad, fontaneria y climatizacion para garantizar el comfort y seguridad de los futuros propietarios.
Consulte con nosotros cualquier cuestión relativa a la memoria de calidades e instalaciones.
Barrio ideal para familias con todo tipo de servicios en la zona, comercios de barrio y colegios.
Servicios de transporte público: línea de metro Julián Besteiro y Casa del Reloj. Lineas de autobuses.
No dude en ponerse en contacto y visitar el inmueble sin compromiso, y si lo precisa, le ofrecemos asesoramiento financiero gratuito con unas inmejorables condiciones hipotecarias.
Si esta pensando en un cambio de vivienda también le ofrecemos el servicio de VALORACIÓN GRATUITO.
ultima modifica
Distribuzione
- 1 stanza
- Superficie 33 m2
- 1 bagno
Caratteristiche Generali
- Anno di costruzione 1977
Galleria
Ubicazione
Zarzaquemada
