Voto Salvato!
Lo vedrai solo tu
Commento salvato!
Aggiungi la tua valutazione e/o un commento per questo annuncio. Lo vedrai solo tu

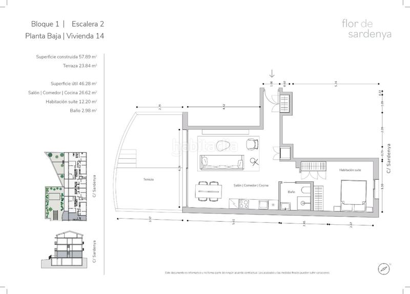
Piccolo appartamento 57m2 in carrer de sardenya 14 in El Pedró Palamós

Carrer de Sardenya 14

  • da 57 m2
  • 1 hab.
  • 1 bagno
  • 4.719 €/m2
FLOR DE SARDENYA
Appartiene alla promozione

FLOR DE SARDENYA

Esta promoción tiene 6 tipos de abitazioni Vedi promozione

ESP:

Descubre la magia de la vida en el corazón del Casco Antiguo de Palamós con nuestra espectacular nueva promoción de obra nueva. Dos imponentes bloques, 31 lujosos apartamentos y 38 plazas de aparcamiento te esperan en este rincón único de la Costa Brava. Inspirados en el estilo mediterráneo, los edificios se visten con colores claros y un diseño minimalista que se integra armoniosamente con el encanto histórico de la ciudad. Todo ello con unos acabados de una inmejorable calidad y un diseño que cuida hasta el último detalle..



Características Principales:

Ubicación Inigualable: Situados en el punto más alto del Casco Antiguo, nuestros edificios proporcionan una agradable sensación de tranquilidad i confort, en la que las viviendas dúplex dispondrán también de unas bonitas vistas a la bahía de Palamós. Con una distribución en forma de L, rodean una elegante zona comunitaria privada con piscina, zonas de sombra y jardines exquisitamente ajardinados.
Espacios Exteriores Únicos: Disfruta del sol mediterráneo durante el día en las amplias terrazas y jardines privativos de los apartamentos en planta baja. Las balconeras deslizantes de pared a pared conectan perfectamente el interior con el exterior, permitiendo que la luz natural y la brisa marina llenen tu hogar.
Diseño Interior Sofisticado: Los apartamentos y dúplex presentan amplios salones con vistas a la zona ajardinada con piscina o al mar, dormitorios dobles de superficie generosa y, en los dúplex, una vista impresionante de la bahía de Palamós y las montañas. Las cubiertas con vigas de madera natural crean una atmósfera única de confort.
Equipamiento de Calidad: Cada vivienda se entrega con una cocina totalmente equipada, incluyendo frigorífico y lavavajillas empotrados, y baños completos con muebles de diseño. La atención a los detalles garantiza que cada espacio sea funcional y elegante.
Aparcamiento y Acceso Conveniente: Amplias plazas de aparcamiento con acceso directo a las viviendas mediante

ultima modifica

Distribuzione

  • 1 stanza
  • Superficie 57 m2
  • Terrazza 23 m2
  • 1 bagno
  • Cucina abitabile

Caratteristiche Generali

  • Riscaldamento
  • Senza posto auto
  • Aria Condizionata
  • Certificato energetico :
    Consumo:
    A
    1 kW h m2 / año
    Emisiones:
    A
    1 kg CO2 m2 / año

Impianti condominiali

  • Ascensore
  • Piscina Condominiale
Annuncio: 8022004351643

Ubicazione

El Pedró Carrer de Sardenya 14

Naviga per la mappa cliccandoci sopra
269.000 € Prezzo dell´annuncio
3.613 €/m2€/m2 población
4.719 €/m2€/m2 dell´annuncio
Vedi evoluzione €/m2 in Palamós
Ti avvisiamo quando abbiamo un annuncio come questo? Crea il tuo avviso e noi ti avvertiremo per posta elettronica quando ci saranno annunci nuovi o se saranno modificati
 

Appartiene alla promozione FLOR DE SARDENYA

Palamós - Carrer de Sardenya, 14
Promoción FLOR DE SARDENYA Palamós - Carrer de Sardenya, 14 da 269.000 € Vedi promozione
Altri tipi di case di questa promozione

Contatta NOU HABITAT

Codice rif. annuncio habitaclia/11000.14:

Vedrai il telefono dopo aver inviato il tuo contatto all’annunciante di modo che ti può rispondere.
Vedrai il telefono dopo aver stabilito il contatto
Inviando...