Voto Salvato!
Lo vedrai solo tu
Commento salvato!
Aggiungi la tua valutazione e/o un commento per questo annuncio. Lo vedrai solo tu

Terreno residenziale in Algaida

  • 15.000 m2
  • 33 €/m2

Proyecto sobre terreno en Algaida con licencia para construir una casa de campo con piscina y pozo propio

Descubra la oportunidad única de construir la casa de sus sueños en este amplio terreno, que ya cuenta con la licencia y el permiso de construcción aprobados.

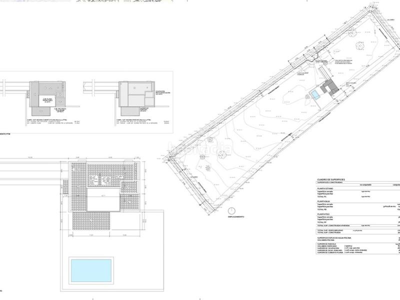
El diseño de la planta baja incluye una acogedora sala principal, un segundo salón versátil, un aseo de invitados, un elegante comedor, una moderna cocina de diseño, un ascensor para mayor comodidad, además de una preciosa terraza con porche. Aquí también encontramos dos habitaciones cada una con su baño y vestidor.

En la planta superior encontrará una lujosa habitación principal con vestidor, baño en suite, además de otra habitación adicional, también con su propio vestidor y baño privado.

Junto a una refrescante piscina, la propiedad ofrecerá un total de 210 m2 construidos además de un sótano con diversos espacios: plaza para dos coches, lavandería, gimnasio, hamam, sauna y sala técnica para una funcionalidad óptima.

Con la electricidad ya conectada, el permiso de pozo próximo a aprobarse y la licencia de obra completamente concedida, toda la documentación está en regla para que el comprador pueda iniciar la construcción inmediatamente después de la compra, si así lo desea.

La venta incluye el terreno, el proyecto aprobado y la licencia de obra. La construcción no está incluida en el precio de venta y podrá iniciarse únicamente una vez completada la compra.

Aviso Legal: Las visualizaciones que se muestran aquí tienen fines ilustrativos únicamente y son representaciones artísticas no vinculantes. Se reserva el derecho a realizar cambios en el diseño, las características y las dimensiones de la propiedad.

Este terreno se vende a través de una empresa, por lo que se aplica un IVA del 21 % en lugar del ITP.
#ref:6841

ultima modifica

Distribuzione

  • Superficie 15000 m2
Annuncio: 46408000001794

Ubicazione

Naviga per la mappa cliccandoci sopra
Ti avvisiamo quando abbiamo un annuncio come questo? Crea il tuo avviso e noi ti avvertiremo per posta elettronica quando ci saranno annunci nuovi o se saranno modificati
 

Contatta Living Blue Mallorca

Codice rif. annuncio habitaclia/6841:

Vedrai il telefono dopo aver inviato il tuo contatto all’annunciante di modo che ti può rispondere.
Vedrai il telefono dopo aver stabilito il contatto
Inviando...