Favorito y comentario
Terreno residenziale in La Teixonera Barcelona
Caratteristiche principali
- 245 m2
- 2.939 €/m2
Informazioni dettagliate
Solar con proyecto y licencia de obras en HortaGuinardó
Venta de suelo residencial con licencia de obra y proyecto en Horta-Guinardó (Zona Teixonera - Vall d'Hebron). IDEAL PROMOTOR // CONSTRUCTOR
Oportunidad única para desarrollar un proyecto residencial en una excelente ubicación: distrito de Horta-Guinardó, a tan solo 20 minutos en metro del centro de Barcelona. El terreno está situado en un entorno residencial consolidado, rodeado de zonas verdes y equipamientos deportivos, con fácil acceso por la Ronda de Dalt.
Características del proyecto:
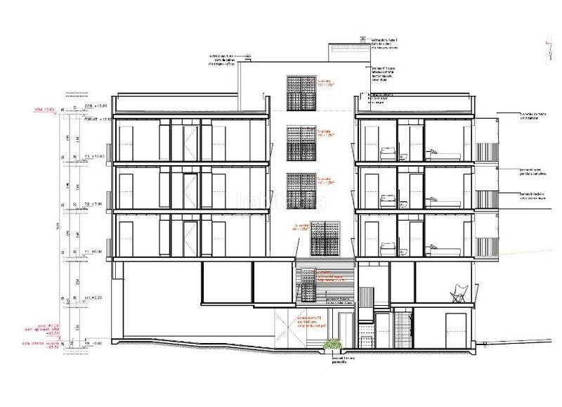
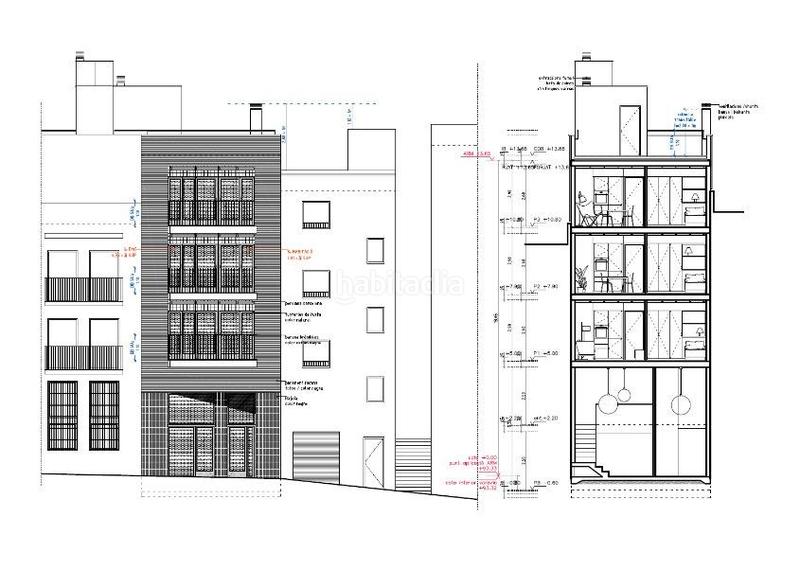
• Superficie del suelo: 245 m²
• Techo edificable: 650 m² sobre rasante + 220 m² de espacios exteriores
• Altura: Planta baja (PB) + 3 plantas pisos (PP)
• Entidades resultantes: 7 viviendas (todas con balcones o terrazas) y 1 local/estudio/loft en planta baja
• Distribución: El proyecto incluye viviendas exteriores, con vistas despejadas a la sierra de Collserola y excelente luz natural. Cada planta contará con 2 apartamentos, a excepción de la planta baja, que tendrá 1 vivienda y el local comercial
Detalles del edificio:
• Las viviendas contarán con terrazas y jardines en la parte posterior, proporcionando espacios exteriores para los apartamentos que dan al interior de la parcela
• Planta baja (PB): Acceso principal a las viviendas, 1 vivienda y 1 local
• Plantas superiores (1ª a 3ª): 2 apartamentos por planta (excepto planta baja), ascensor y escalera
Ubicación destacada:
• A tan solo 5 minutos caminando de la estación de metro L5 El Coll i la Teixonera y a 8 minutos de L3 y L5 Vall d’Hebron
• Frente a las instalaciones deportivas de Vall d'Hebron, la piscina municipal y a 10 minutos andando del hospital
• A solo 15 minutos caminando de la carretera de la Arrabassada y el inicio del parque natural de Collserola
• Excelente conectividad en coche con la Ronda de Dalt, que facilita el acceso al aeropuerto y otras localidades cercanas
Precio de venta: 750.000 € (Licencia de obras y proyecto incluidos)
No dudes en contactar con nosotros para más información o para programar una visita al terreno.
Envíanos un WhatsApp al + con tu disponibilidad, y te contactaremos a la mayor brevedad posible.
AK-BCN forma parte del Grupo Sosa, una agencia inmobiliaria con más de 20 años de experiencia en el sector residencial en Barcelona y provincia. Ofrecemos una amplia gama de oportunidades inmobiliarias: viviendas, chalets y fincas tanto de obra nueva como de segunda mano. Gestionamos operaciones de venta, alquiler y traspaso, siempre con las máximas garantías económicas y jurídicas del mercado.
AK-BCN es una empresa dinámica especializada en la gestión integral de activos inmobiliarios. Contamos con más de 100 propiedades en gestión activa y un enfoque personalizado para propietarios, compradores e inquilinos. Ofrecemos soluciones innovadoras adaptadas a cada necesidad, desde la comercialización hasta la mejora de activos.
Somos pioneros en proyectos de Co-Living, revalorización de inmuebles y en la búsqueda de modelos de gestión que optimicen el rendimiento de cada propiedad. Nuestro equipo trabaja para minimizar el estrés en la relación cliente-inquilino y asegurar el más alto nivel de satisfacción para todas las partes.
Nuestros servicios incluyen:
• Puesta a punto y optimización de la propiedad para venta o alquiler
• Marketing inmobiliario, captación y cierre de operaciones
• Mantenimiento preventivo y correctivo de inmuebles
• Resolución ágil de incidencias y gestión postventa
• Representación legal y mediación entre propietarios e inquilinos/compradores
ultima modifica
Distribuzione
- Superficie 245 m2
Galleria
Ubicazione
La Teixonera Calle CORTADA