Favorito y comentario
Terreno residenziale in Campos
Caratteristiche principali
- 715 m2
- 427 €/m2
Informazioni dettagliate
Terreno edificable en Sa Ràpita con proyecto para una moderna vivienda unifamiliar cerca de la playa
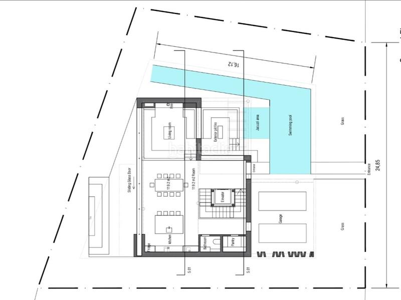
Esta parcela edificable de 765 m2 en Sa Ràpita se encuentra en un entorno tranquilo. Situada en tres de sus lados sin vecinos directos, ofrece un alto grado de tranquilidad y privacidad.
La parcela está destinada a la construcción de una vivienda unifamiliar. Se permiten dos plantas, lo que posibilita amplias zonas de estar con arquitectura moderna. La ubicación urbanística dispone de una excelente infraestructura, ya que cuenta con agua, electricidad, alcantarillado, alumbrado público y aceras ya instalados.
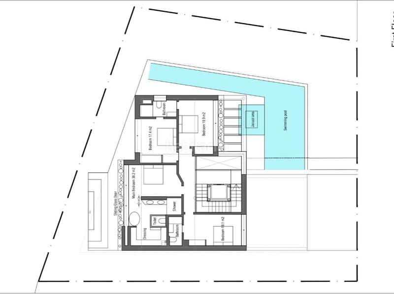
Ya existe un proyecto de construcción. Está previsto un sótano con sala de fitness y sala de máquinas, en la planta baja un amplio salón con cocina abierta, sala de estar, lounge exterior y un garaje para dos vehículos. En la planta superior se contemplan cuatro dormitorios y tres baños. El concepto se completa con una piscina y un amplio jardín.
La licencia de obra puede obtenerse en pocos meses tras la presentación del proyecto. De este modo se abre la posibilidad de una ejecución en breve plazo, con un alto grado de seguridad en la planificación y libertad de diseño individual.
Esta parcela ofrece la rara oportunidad de construir una vivienda unifamiliar moderna en una zona tranquila y a la vez bien comunicada de Campos. La combinación del tamaño del terreno, el proyecto ya existente y la privacidad la convierten en una opción especialmente atractiva.
Aviso Legal: Las visualizaciones que se muestran aquí tienen fines ilustrativos únicamente y son representaciones artísticas no vinculantes. Se reserva el derecho a realizar cambios en el diseño, las características y las dimensiones de la propiedad.
#ref:6784
ultima modifica
Distribuzione
- Superficie 715 m2
Galleria
Ubicazione
