Favorito y comentario
Terreno residenziale in Felanitx poble Felanitx
Caratteristiche principali
- 22.954 m2
- 26 €/m2
Informazioni dettagliate
¡Oportunidad excepcional entre Felanitx y Cas Concos!
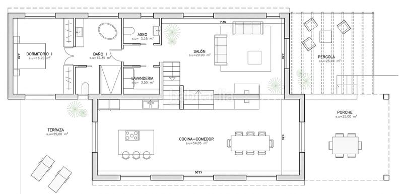
Esta parcela se vende con un ambicioso proyecto de construcción. La casa proyectada tiene 235 m² de superficie habitable y 130 m² de terrazas y porches, perfectos para disfrutar del clima mediterráneo. La piscina está diseñada para ofrecer una superficie de 35 m² con estanques reflectantes, proporcionando un espacio ideal para relajarse.
La propiedad se asienta sobre una amplia parcela de 22.952 m² y ofrece unas vistas privilegiadas de Sant Salvador y el Castillo de Santueri. Su excelente ubicación garantiza buenas comunicaciones, a pocos minutos de Cas Concos, Es Caritxó y Felanitx.
No pierdas la oportunidad de construir la casa de tus sueños en este entorno idílico. ¡Solicita más información y empieza a diseñar tu nuevo hogar!
ultima modifica
Distribuzione
- Superficie 22954 m2
Galleria
Ubicazione
Felanitx Poble
