Voto Salvato!
Lo vedrai solo tu
Commento salvato!
Aggiungi la tua valutazione e/o un commento per questo annuncio. Lo vedrai solo tu

Terreno residenziale in Centre Mataró

  • 414 m2
  • 1.522 €/m2

Solar en venta en Mataró en la mejor zona de la ciudad

Parcela en venta en el centro de Mataró, entre el casco histórico y la playa.
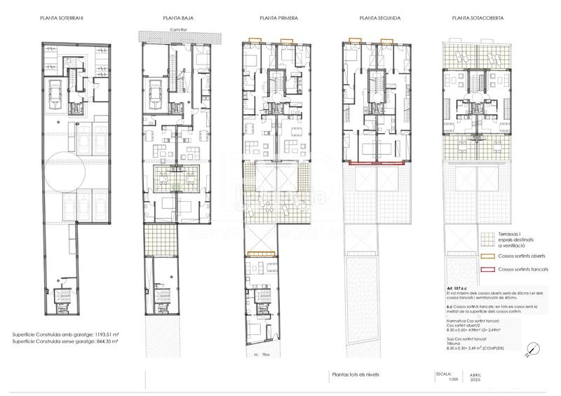
Resumen Características generales del proyecto:
-Superficie construida total: 1.192 m2 y útil 1.009m2. -Es un proyecto para 7 viviendas
-Sótano con garaje 6 coches+1 ,4 motos y 10 bicicletas.
-Las viviendas tienen diferentes características, todas disponen de amplias terrazas

1 vivienda de una habitación en PB,
3 viviendas de dos dormitorios: una en PB y dos en planta piso.
2 viviendas dúplex de 4 habitaciones y dos terrazas en planta segunda y tercera
1 vivienda independiente de una habitación +1 (tiene una planta semisubterránea con Terraza, que se designa
como espacio anexo, tiene ventilación e iluminación )

-Todas tienen acceso directo al sótano-garaje.
-No hay obligación del 30% de vivienda social es un proyecto anterior a dicha
normativa Mataró.
-Tiene licencia concedida, solo hay que pagar el importe y para empezar hay que hacer
el proyecto ejecutivo.

En la actualidad existe un edificio en mal estado de conservación. La parcela tiene una anchura máxima de 10,21m y una profundidad máxima de 45,49m.Se encuentra en la mejor zona de la ciudad, junto al área de comercios prime, zonas de restauración y ocio, ya unos escasos 200m de la estación y la playa. La ubicación hace que sea una localización ideal!

No dudes en contactar con nosotros para ampliar información.

* Si necesita financiación, disponemos de un gran equipo de asesores. Estudio de viabilidad gratuita y financiación de hasta el 100%.
*Impuestos y gastos de la compra no incluidos en el precio.

ultima modifica

Distribuzione

  • Superficie 414 m2
Annuncio: 739004431698

Ubicazione

Centre

Naviga per la mappa cliccandoci sopra
Ti avvisiamo quando abbiamo un annuncio come questo? Crea il tuo avviso e noi ti avvertiremo per posta elettronica quando ci saranno annunci nuovi o se saranno modificati
 

Contatta BiG SERVEIS IMMOBILIARIS

Codice rif. annuncio habitaclia/SV2025MAT:

Vedrai il telefono dopo aver inviato il tuo contatto all’annunciante di modo che ti può rispondere.
Vedrai il telefono dopo aver stabilito il contatto
Inviando...