Favorito y comentario
Lo vedrai solo tu
495.000 €
Avvisami se diminuisce
Terreno residenziale in Centre Rubí
Caratteristiche principali
- 648 m2
- 764 €/m2
Informazioni dettagliate
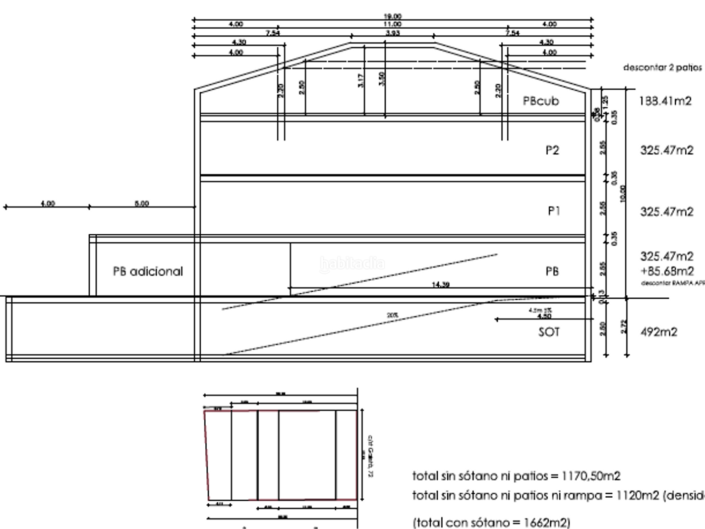
TERRENO EDIFICABLE! Se entrega con derribo! Calificación urbanistica 13/b
Excelente terreno de 648 m2 en la zona del centro de Rubí, inmejorable situación como transporte publico, supermercados, comercios etc.. .
En este terreno existe la posibilidad de construir 14 viviendas mas las plazas de aparcamiento.
Con una superficie edificable de techo de 1170 m2 sobre rasante). Edificabilidad de sótano, planta baja, planta primera, planta segunda y planta bajo cubierta.
Solicite más información y uno de nuestros comerciales contactará con usted.
ultima modifica
Distribuzione
- Superficie 648 m2
Galleria
Ubicazione
Centre Carrer de Sant Gaietà
Naviga per la mappa cliccandoci sopra

habitaclia.com non si responsabilizza degli errori che l´informazione mostrata su questa mappa potrebbe contenere. L´utente sarà il responsabile dell´uso che farà della suddetta informazione.
Ti avvisiamo quando abbiamo un annuncio come questo?
Crea il tuo avviso e noi ti avvertiremo per posta elettronica quando ci saranno annunci nuovi o se saranno modificati