Voto Salvato!
Lo vedrai solo tu
Commento salvato!
Aggiungi la tua valutazione e/o un commento per questo annuncio. Lo vedrai solo tu

Terreno residenziale in pere calders 29 in residencial Begur-esclanyà Begur

  • 623 m2
  • 189 €/m2

Parcela en venta en Begur

¿Buscas construir la casa de tus sueños en un entorno natural y tranquilo? Este terreno es ideal para ti.

Ubicación privilegiada.
Situado en la zona sur de la urbanización Residencial Begur, este terreno ofrece una ubicación excelente para quienes desean vivir rodeados de naturaleza, con un vecindario tranquilo y familiar durante todo el año. Orientación sur, ideal para aprovechar la luz solar durante todo el día y maximizar eficiencia energética y confort térmico.

· A solo 3 km del encantador pueblo de Begur
· A tan solo 5 km de las playas paradisíacas de Tamariu y Aiguablava
· Muy próximo a senderos, bosques y campos
· Acceso rápido a todos los servicios urbanos
· Infraestructura completa: alcantarillado, alumbrado público, agua potable, electricidad, conexión a fibra óptica

Características urbanísticas:
· Superficie del terreno: 623 m²
· Ocupación máxima permitida: 30% ? 186,60 m²
· Edificabilidad total: 60% ? 373,20 m²

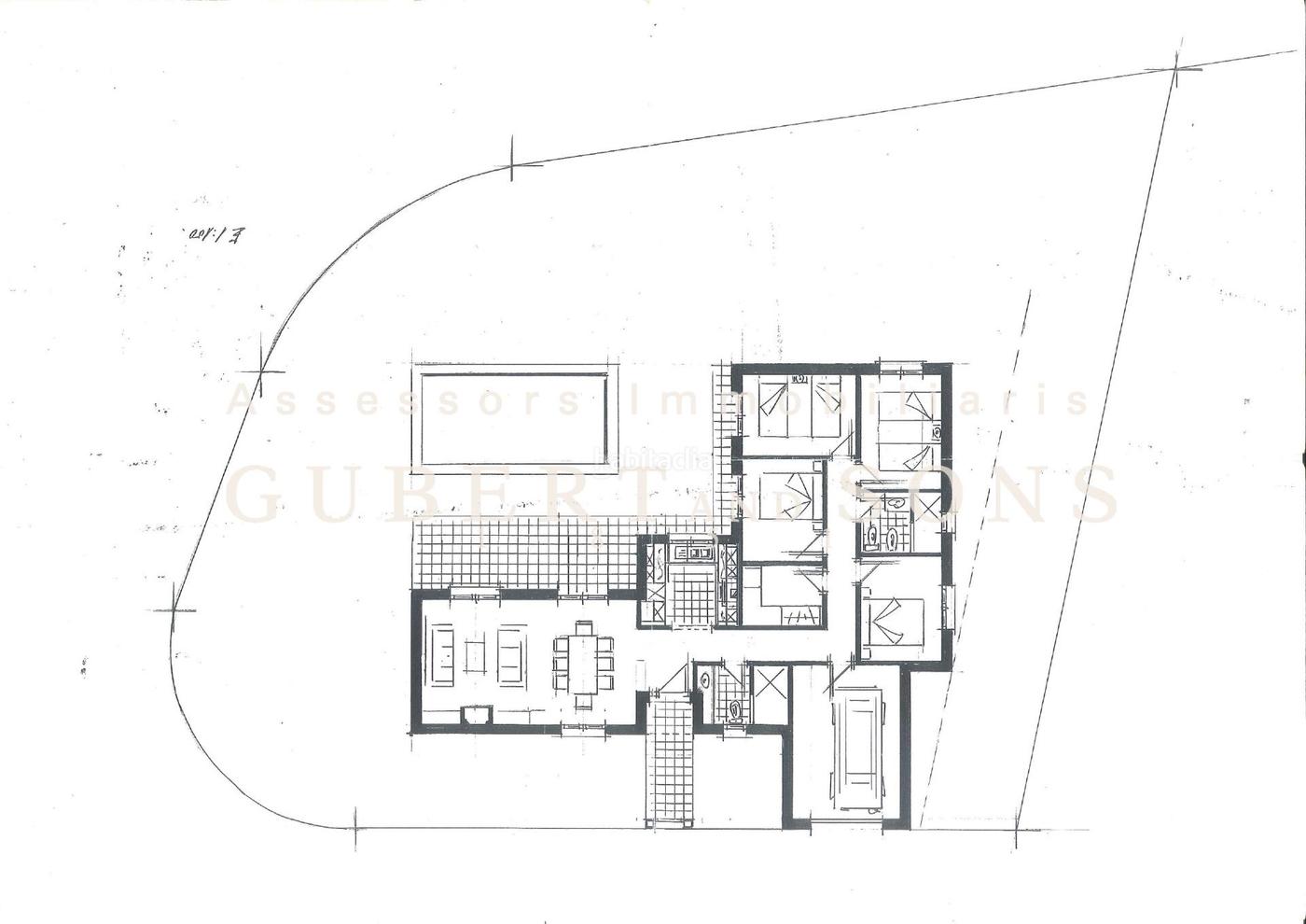
Proyecto arquitectónico incluido
Se adjunta plano de planta que muestra una posible distribución moderna con piscina, terrazas, zonas ajardinadas y una distribución funcional con varias habitaciones, cocina americana, salón comedor y área exterior.

Entorno natural
El terreno presenta una topografía levemente inclinada, con una mezcla de zonas planas y elevadas, vegetación mediterránea autóctona (pinos, encinas, arbustos) y vistas abiertas hacia el valle. Las imágenes muestran diferentes perspectivas del terreno, accesibilidad por dos calles, y buena privacidad gracias a la vegetación existente.

Los gastos e impuestos derivados de la escritura pública de compraventa no están incluidos en el precio de venta y serán asumidos por la parte compradora, excepto la Plusvalía Municipal, que correrá a cargo del vendedor, según lo establecido en el artículo 531.6 del Libro V del Código Civil de Cataluña. [IW]

ultima modifica

Distribuzione

  • Superficie 623 m2
Annuncio: 40023000000199

Ubicazione

Residencial Begur-Esclanyà Pere Calders 29

Naviga per la mappa cliccandoci sopra
Ti avvisiamo quando abbiamo un annuncio come questo? Crea il tuo avviso e noi ti avvertiremo per posta elettronica quando ci saranno annunci nuovi o se saranno modificati
 

Contatta GUBERT & SONS

Codice rif. annuncio habitaclia/PAR0014:

Vedrai il telefono dopo aver inviato il tuo contatto all’annunciante di modo che ti può rispondere.
Vedrai il telefono dopo aver stabilito il contatto
Inviando...