Visita virtuale
Voto Salvato!
Lo vedrai solo tu
Commento salvato!
Aggiungi la tua valutazione e/o un commento per questo annuncio. Lo vedrai solo tu

Affitto appartamento in La Fortuna Leganés

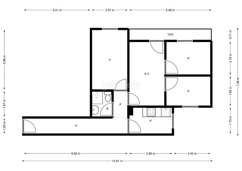
  • 59 m2
  • 3 hab.
  • 1 bagno
  • 19,92 €/m2

¡ALTA DE SUMINISTROS GRATIS!


Excelente vivienda de tres dormitorios y un baño. Se encuentra en la 2ª planta de un edificio residencial. No dispone de ascensor. Situado en LA FORTUNA en el distrito de La Fortuna.


La vivienda se distribuye en tres dormitorios y , salón-comedor con acceso a terraza, cocina independiente y un baño.. Cuenta con cocina amueblada y equipada con muebles altos y bajos, vitrocerámica, horno y campana extractora. Dispone de suelos de gres en cocina y baño y tarima en el resto de estancias.


Se encuentra ubicado en La Fortuna, Noroeste de Leganes. Cuenta con fácil acceso a través de las principales carreteras y buenas comunicaciones por transporte público. La parada de metro más cercana es La Fortuna y se encuentra a menos de 5 minutos andando. La parada de autobús más cercana se encuentra a menos de 5 minutos andando. La parada de taxi más cercana se encuentra a menos de 10 minutos andando.

En su entorno existen viviendas plurifamiliares de similares características. La zona cuenta con todo tipo de servicios básicos, el centro de salud más cercano se encuentra a 190 metros, el hospital más cercano se encuentra a 750 metros, existen 3 farmacias a menos de 300 metros, existen 2 colegios a menos de 300 metros. Además, a menos de 500 metros también puedes encontrar 2 supermercados, 3 bancos, una oficina de correos.

La zona cuenta con una amplia oferta de entretenimiento con un cine, un teatro, 2 parques, bares, restaurantes y comercios a pocos minutos de la vivienda.

En cuanto al transporte privado, la zona dispone de parkings privados, 2 parkings públicos y aparcamiento en la calle. La vivienda tiene un fácil acceso por carretera y está bien comunicado a través de la R-5, Carretera de la Fortuna y la Carretera del Barrio de la Fortuna.


Requisitos:
- 1 mes de fianza
- Seguro del hogar a la firma del contrato.
- Antigüedad laboral ininterrumpida superior a un año.
- No aparecer en ningún fichero de morosidad.
- Disponer de una ratio de solvencia* de entre un 30% y 35% dependiendo de la zona.
*Solo se tendrán en cuenta ingresos demostrables para acreditar el ratio

ultima modifica

Distribuzione

  • 3 stanze
  • Superficie 59 m2
  • 1 bagno
  • Cucina abitabile: No

Caratteristiche Generali

  • Senza posto auto
  • Senza aria condizionata
  • Anno di costruzione 1966
  • Certificato energetico :
    Consumo:
    E
    52 kW h m2 / año
    Emisiones:
    E
    137 kg CO2 m2 / año

Impianti condominiali

  • Senza ascensore
Annuncio: 38251000005840

Ubicazione

La Fortuna

Naviga per la mappa cliccandoci sopra
1.175 € Prezzo dell´annuncio
14,51 €/m2€/m2 comarca
19,92 €/m2€/m2 dell´annuncio
Quanto ti piacerebbe pagare?
Vedi evoluzione €/m2 in Leganés (La Fortuna)
Ti avvisiamo quando abbiamo un annuncio come questo? Crea il tuo avviso e noi ti avvertiremo per posta elettronica quando ci saranno annunci nuovi o se saranno modificati
 

Contatta Alquila Tu Hogar

Codice rif. annuncio habitaclia/2001/20010021/30:

Vedrai il telefono dopo aver inviato il tuo contatto all’annunciante di modo che ti può rispondere.
Vedrai il telefono dopo aver stabilito il contatto
Inviando...