Favorito y comentario
Lo vedrai solo tu
10.522 €
Avvisami se diminuisce
Affitto capannone industriale in carretera cadiz nacional iv 27c in Sevilla
Caratteristiche principali
- 2.638 m2
- 2 bagni
- 3,99 €/m2
Informazioni dettagliate
Nave en alquiler
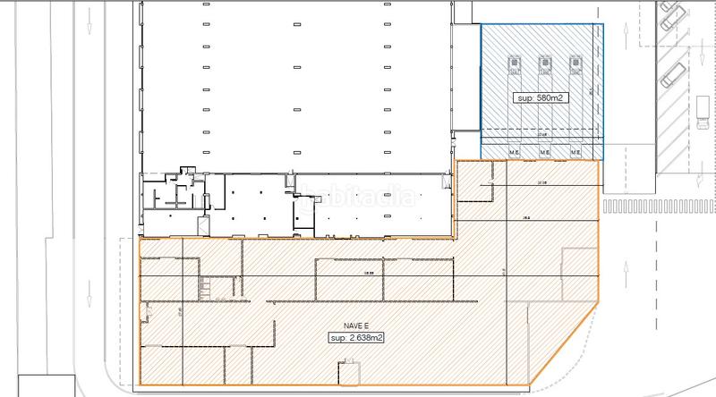
Nave con una superficie de 2.638 m2 y 3 muelles de carga situada junto a Avenida de Jerez y a los Jardines de Hércules.
Superficie de 580 m2 destinada a la realización de las tareas de carga y descarga de mercancías de vehículos industriales, a la realización de maniobras de dichos vehículos y al estacionamiento de los mismos.
Ubicación estratégica, zona de gran afluencia y fácil acceso.
ultima modifica
Distribuzione
- Superficie 2638 m2
Galleria
Ubicazione
Bellavista Carretera Cadiz Nacional IV 27C
Naviga per la mappa cliccandoci sopra
habitaclia.com non si responsabilizza degli errori che l´informazione mostrata su questa mappa potrebbe contenere. L´utente sarà il responsabile dell´uso che farà della suddetta informazione.
Ti avvisiamo quando abbiamo un annuncio come questo?
Crea il tuo avviso e noi ti avvertiremo per posta elettronica quando ci saranno annunci nuovi o se saranno modificati