Voto Salvato!
Lo vedrai solo tu
Commento salvato!
Aggiungi la tua valutazione e/o un commento per questo annuncio. Lo vedrai solo tu

Affitto capannone industriale in calle río zújar 25 in Getafe

  • 3.427 m2
  • 6,00 €/m2

Módulos logísticos en alquiler en en CLA de Getafe

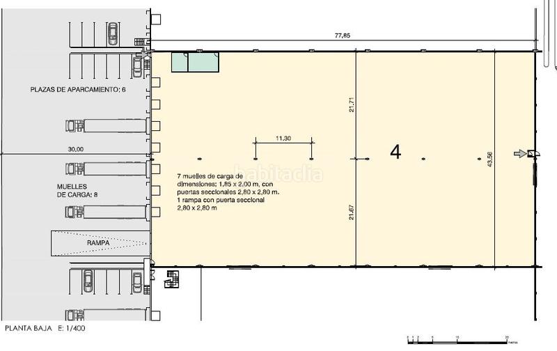
Plataforma logística con una superficie total de 32.000 m² construidos y con flexibilidad de superficies desde 3.000 m² situada en el C. L. A. de Getafe. Disponibilidad de 1 módulo de 3.427 m². Características: estructura de hormigón, cerramiento de chapa, altura libre de 10 m. , muelles de carga, cubierta plana tipo sándwich, solera de hormigón, PCI: BIE's, rociadores, extintores; recinto vallado, alarma, patio delantero y amplia zona de maniobras.

Chiedere altri dati all´annunciante

ultima modifica

Distribuzione

  • Superficie 3427 m2

Caratteristiche Generali

  • Anno di costruzione 1996
Annuncio: 40677000000370

Ubicazione

Los Olivos-Los Ángeles Calle Río Zújar 25

Naviga per la mappa cliccandoci sopra
Ti avvisiamo quando abbiamo un annuncio come questo? Crea il tuo avviso e noi ti avvertiremo per posta elettronica quando ci saranno annunci nuovi o se saranno modificati
 

Contatta CBRE REAL ESTATE

Codice rif. annuncio habitaclia/Prologis Park Getafe:

Vedrai il telefono dopo aver inviato il tuo contatto all’annunciante di modo che ti può rispondere.
Vedrai il telefono dopo aver stabilito il contatto
Inviando...