
Affitto Capannone industriale in Granvia LH. Nave en alquiler en l' hospitalet de llobregat
Hospitalet de Llobregat (L´) - Granvia LH
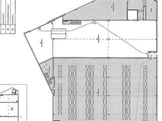
1.194m2 - 11,73€/m2
Planta baja 948 m² + Planta Primera 246 m² + Patios 180 m² Excelente estado de conservación Estructura de hormigón pref...
