Voto Salvato!
Lo vedrai solo tu
Commento salvato!
Aggiungi la tua valutazione e/o un commento per questo annuncio. Lo vedrai solo tu
Opportunità 800 € Avvisami se diminuisce

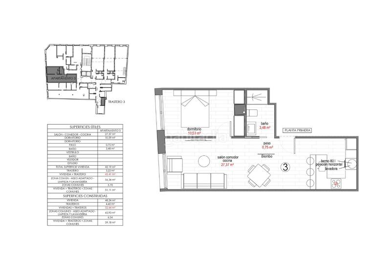
Affitto piccolo appartamento in gonzalez adalid 10 in Murcia

  • 59 m2
  • 1 hab.
  • 1 bagno
  • 13,56 €/m2

Estupendo APARTAMENTO de LUJO y en ALQUILER en calle PLATERÍA

MURCIACTIVA ALQUILA este estupendo y todo exterior apartamento con acabados de LUJO en los recientemente terminados APARTAMENTOS NACAR CENTRO, situados en Calle González Adalid esquina Platería, en pleno centro de Murcia, en una de las calles más conocidas y transitadas de la ciudad, con un entorno urbano y comercial inigualable.

Se trata de un inmueble totalmente reformado de 59 m2, con una habitación y 1 baño completo, cocina tipo americana totalmente equipada y un gran salón-comedor con un ventanas y mirador con preciosas vistas a Platería.

Los acabados son de la mejor CALIDAD: puerta de seguridad de acceso a la vivienda, suelos y revestimientos porcelánicos de 1º gama marca Keraben; A/A frío-calor por conductos con rejillas de expulsión lineales y por toberas de ultima generación marca Daikin; luminarias Led de diseño marca Beneito Faure; techos originales tipo bóveda en ladrillo cerámico recuperados y restaurados; carpinterías exteriores en madera originales del edificio totalmente restauradas y carpinterías interiores lacadas en blanco con armarios adaptados y forrados interiormente en tejido tipo textil; cocina totalmente amueblada y equipada con electrodomésticos (microondas, horno y lavavajillas panelado marca Balay, frigorífico neofrost panelado, placa de inducción con campana extractora integrada marca Elica, encimera porcelánica Dekton de Cosentino con enchufe integrado en la propia barra; baño totalmente equipado con inodoro suspendido marca Duravit, griferías de 1º gama marca Hansgrohe, sistema termostático en ducha con rociador, mueble de baño de diseño y espejo con iluminación led delantera y retroiluminada, accesorios y toalleros marca Cosmic; interruptores marca Niessen; videoportero; termo eléctrico; y preinstalación de internet de alta velocidad.

La planta de los apartamentos cuenta con unas PROPIAS y bonitas ZONAS COMUNES con terminaciones de diseño y espacio de recibidor y descanso, luminarias con sensor de aproximación y una zona donde podrá disfrutar de un TRASTERO exclusivo para su vivienda.
El inmueble se encuentra ubicado en un edificio de principios del S. XX, catalogado y restaurado con una fachada y zonas comunes bonitas y cuidadas. Ascensor de 6 plazas y buena vecindad.

Gastos de comunidad e IBI incluidos. El inmueble se entrega sin más mobiliario que el descrito con anterioridad en los acabados. Es requerida solvencia acreditada.

¡¡ Para los amantes del centro de la ciudad y la arquitectura de recuperación, este inmueble es exclusivo por su ubicación, confortabilidad e interiorismo. Ven a verlo, te sorprenderá ¡¡ [IW]

ultima modifica

Distribuzione

  • 1 stanza
  • Superficie 59 m2
  • 1 bagno
  • Cucina abitabile
  • ripostiglio

Caratteristiche Generali

  • Riscaldamento
  • Aria Condizionata
  • Piano numero 1
  • Certificato energetico :
    Consumo:
    G
    999 kW h m2 / año
    Emisiones:
    G
    999 kg CO2 m2 / año

Impianti condominiali

  • Ascensore
Annuncio: 10055002044539

Ubicazione

La Catedral Gonzalez Adalid 10

Naviga per la mappa cliccandoci sopra
800 € Prezzo dell´annuncio
10,08 €/m2€/m2 distrito
13,56 €/m2€/m2 dell´annuncio
Quanto ti piacerebbe pagare?
Vedi evoluzione €/m2 in Murcia (Centro)
Ti avvisiamo quando abbiamo un annuncio come questo? Crea il tuo avviso e noi ti avvertiremo per posta elettronica quando ci saranno annunci nuovi o se saranno modificati
 

Contatta MURCIACTIVA

Codice rif. annuncio habitaclia/A018-N3:

Vedrai il telefono dopo aver inviato il tuo contatto all’annunciante di modo che ti può rispondere.
Vedrai il telefono dopo aver stabilito il contatto
Inviando...