Voto Salvato!
Lo vedrai solo tu
Commento salvato!
Aggiungi la tua valutazione e/o un commento per questo annuncio. Lo vedrai solo tu
1.000 € Avvisami se diminuisce
è diminuito 100 €

Affitto ufficio con riscaldamento in Alhóndiga Bilbao

  • 66 m2
  • 15,15 €/m2

Oficina en alquiler en Autonomia

Quorum Bilbao presenta una oficina en alquiler en Autonomía, junto a Iparraguirre. Con calefacción y aire acondicionado incluidos.

Se trata de una oficina de 66 metros cuadrados, con grandes ventanales a patio de manzana, perfectamente preparada para entrar a trabajar.

Con suelos cerámicos, instalación eléctrica, de red y luminaria completa. Preparado para varios puestos de trabajo.

Gastos de comunidad INCLUIDOS, que incluyen calefacción central, aire acondicionado por bomba de calor, dos aseos comunitarios, vigilancia y dos ascensores.

Posibilidad de adquirir parcelas de garaje con acceso directo desde 130€

A 3 minutos andando de la plaza Indautxu, donde encontramos estación de metro, y a otros 3 de la plaza de la Casilla, con servicio de tranvía.

ultima modifica

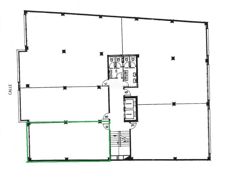
Distribuzione

  • Superficie 66 m2

Caratteristiche Generali

  • Riscaldamento
  • Aria Condizionata
  • Certificato energetico :
    Consumo:
    G
    999 kW h m2 / año
    Emisiones:
    G
    999 kg CO2 m2 / año

Impianti condominiali

  • Ascensore
Annuncio: 29469000002260

Ubicazione

Alhóndiga Calle Autonomía

Naviga per la mappa cliccandoci sopra
Ti avvisiamo quando abbiamo un annuncio come questo? Crea il tuo avviso e noi ti avvertiremo per posta elettronica quando ci saranno annunci nuovi o se saranno modificati
 

Contatta INMOBILIARIA QUORUM BILBAO .

Codice rif. annuncio habitaclia/16584:

Vedrai il telefono dopo aver inviato il tuo contatto all’annunciante di modo che ti può rispondere.
Vedrai il telefono dopo aver stabilito il contatto
Inviando...