OFICINA DIÁFANA EN ALQUILER CON PARKING EN ZONA CASTILLA.
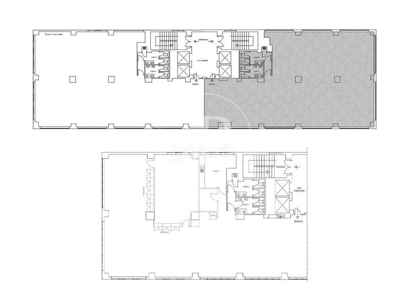
Aproperties ofrece fantástica oficina con una superficie de 375 m², totalmente diáfana para que pueda realizar la implantación que necesite, falsos techos metálicos, suelo técnico para cableado, climatización frío/calor centralizado, con sistemas de control y humectación actualizados, excelente luz natural, control de acceso 24 horas/365 días, parking subterráneo con capacidad para 116 plazas, 4 Plazas de parking concertadas en superficie para visitas y reparto, consta de 4 Ascensores OTIS (3 de alta velocidad, 1 ascensor montacargas).
El edificio Euromor se encuentra en una de las mejores zonas de oficinas de Madrid. Está situado a 200 metros del Metro (Bambú), al lado de la estación de Chamartín (Renfe y Metro) y con acceso desde la M-30.
¿Te imaginas trabajar aquí? Ref. AOM2305003
ultima modifica
Testo tradotto da un sistema automatico
Traduzione non disponibile
habitaclia.com non si responsabilizza degli errori che l´informazione mostrata su questa mappa potrebbe contenere. L´utente sarà il responsabile dell´uso che farà della suddetta informazione.
Ti avvisiamo quando abbiamo un annuncio come questo?Crea il tuo avviso e noi ti avvertiremo per posta elettronica quando ci saranno annunci nuovi o se saranno modificati
Vedrai il telefono dopo avere inviato il formulario di Contattare con l’annunciante
Inserisci il codice che compare nell’immagine superiore.
Le mie notifiche
Le mie ricerche
i miei favoriti
Annunci contattati
Avviso di un annuncio:
Ti inviamo per posta elettronica gli ultimi cambiamenti nell´immobile selezionato
Avviso annunci simili :
Ti inviamo per mail gli ultimi immobili e le promozioni che sono state pubblicate su habitaclia e che concordano con le preferenze della tua ricerca
Aggiungi a favoriti
Elimina da favoriti
El Índice de referencia de precios de alquiler es un indicador que publica la Agencia Catalana de la Vivienda y que permite conocer una estimación del precio medio del metro cuadrado de alquiler de una vivienda ubicada en una zona y con determinadas características. También orienta sobre el precio mínimo y máximo que puede llegar a tener esa vivienda.