Voto Salvato!
Lo vedrai solo tu
Commento salvato!
Aggiungi la tua valutazione e/o un commento per questo annuncio. Lo vedrai solo tu

Appartamento con riscaldamento in Fuentecillas - S7 - S8 Burgos

  • 159 m2
  • 818 €/m2

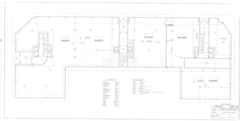
CONSTRUYE TU VIVIENDA A MEDIDA. . INVERSIÓN SEGURA EN FUENTECILLAS: LOCAL COMERCIAL CON OPCIÓN RESIDENCIAL. Local en bruto en una de las zonas con mayor proyección de Burgos. Ideal tanto para emprendedores como para inversores que buscan rentabilidad y flexibilidad. Tú decides el destino: negocio, viviendas o ambos. Superficies disponibles desde 159 m² hasta 1.000 m², totalmente adaptables a tus necesidades: Restaurante. Oficinas. Gimnasio. Supermercado. Edificio residencial moderno. CARACTERÍSTICAS DESTACADAS: Ubicación estratégica en una zona en plena expansión, con gran visibilidad y excelente comunicación. Fachadas a dos y tres calles: más luz natural, más visibilidad, más valor. Posibilidad de abrir los huecos del tamaño que necesites. Alturas entre 4,10 m y 4,65 m: posibilidad de crear entreplantas o espacios diáfanos y luminosos. Uso mixto: combina lo comercial con lo residencial para maximizar tu inversión. Este inmueble no es solo un local, es una oportunidad de construir desde cero un proyecto rentable, moderno y con visión de futuro. Anticípate al desarrollo de Fuentecillas. Invierte antes que suban los precios. Tres posibilidades de compra. 159 m² por 130.000 €300 m² por 260.000 €600 m² por 460.000 €VIVE CON CALIDAD. CONTACTA.Características del inmueble:- exterior

ultima modifica

Distribuzione

  • Superficie 159 m2

Caratteristiche Generali

  • Riscaldamento
  • Certificato energetico :
    Consumo:
    G
    999 kW h m2 / año
    Emisiones:
    G
    999 kg CO2 m2 / año
Annuncio: 32670000003796

Ubicazione

Fuentecillas - S7 - S8

Naviga per la mappa cliccandoci sopra
130.000 € Prezzo dell´annuncio
2.280 €/m2€/m2 población
818 €/m2€/m2 dell´annuncio
64% più economico della media*
Vedi evoluzione €/m2 in Burgos (Fuentecillas - S7 - S8)
Ti avvisiamo quando abbiamo un annuncio come questo? Crea il tuo avviso e noi ti avvertiremo per posta elettronica quando ci saranno annunci nuovi o se saranno modificati
 

Contatta INMOBILIARIA CALIDAD

Codice rif. annuncio habitaclia/V10925:

Vedrai il telefono dopo aver inviato il tuo contatto all’annunciante di modo che ti può rispondere.
Vedrai il telefono dopo aver stabilito il contatto
Inviando...