Voto Salvato!
Lo vedrai solo tu
Commento salvato!
Aggiungi la tua valutazione e/o un commento per questo annuncio. Lo vedrai solo tu
Opportunità 269.000 € Avvisami se diminuisce

Appartamento con riscaldamento in Monte Alto - Zalaeta - Atocha Coruña (A)

Rúa Gerión

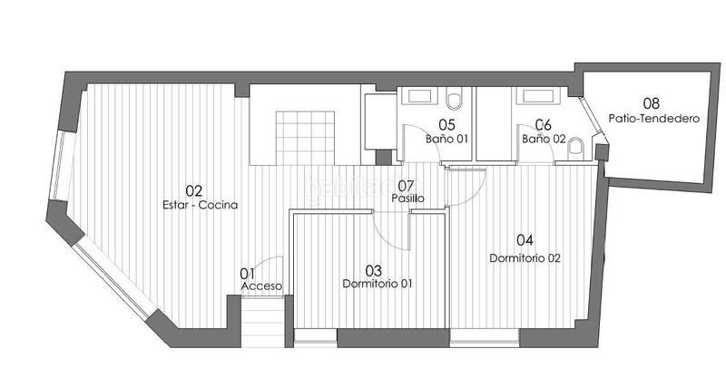
  • 85 m2
  • 2 hab.
  • 2 bagni
  • 3.165 €/m2

Fantástico piso a ESTRENAR en MONTE ALTO.

Os presentamos esta amplia planta baja de 78m2 más 6m2 de terraza, con preciosos acabados a estrenar, que cuenta con dos dormitorios uno de ellos con baño en suite y acceso directo a un patio interior; un segundo cuarto de baño y un amplio salón comedor exterior con cocina americana, completamente equipada y amueblada con altas calidades.

Entre sus acabados, suelos de tarima AC4,ventanas climalit de 4+4,calefacción eléctrica individual, armarios empotrados suelo-techo, acumulador de agua 100 litros, electrodomésticos TEKA y lavavajillas empotrado.

En una de las zonas más demandas del momento con todos los servicios al alcance; comercios, supermercados, centros deportivos y educativos, paradas de autobús… y que además está a pocos metros de las playas de Matadero y Orzán.

(Con la posibilidad de negociar la compra de algún mueble, no incluídos en el precio de venta)

¿Es lo que buscas?

Nuestro lema es la excelencia y trabajamos día a día para mantenerla. Hacemos la experiencia de compra o venta de un inmueble única para cada uno de nuestros clientes y propietarios. Bienvenidos a la singularidad, bienvenidos a Incor.

OFRECEMOS SOLUCIONES, NO PROMESAS
Encuentra más en

ultima modifica

Distribuzione

  • 2 stanze
  • Superficie 85 m2
  • 2 bagni

Caratteristiche Generali

  • Riscaldamento
  • Senza posto auto
  • Senza aria condizionata
  • Anno di costruzione 2025
  • Certificato energetico :
    Consumo:
    G
    999 kW h m2 / año
    Emisiones:
    G
    999 kg CO2 m2 / año

Impianti condominiali

  • Senza ascensore
Annuncio: 34045000001088

Ubicazione

Monte Alto - Zalaeta - Atocha Rúa Gerión

Naviga per la mappa cliccandoci sopra
269.000 € Prezzo dell´annuncio
4.502 €/m2€/m2 distrito
3.165 €/m2€/m2 dell´annuncio
30% più economico della media*
Vedi evoluzione €/m2 in Coruña (A) (Monte Alto - Zalaeta - Atocha)
Ti avvisiamo quando abbiamo un annuncio come questo? Crea il tuo avviso e noi ti avvertiremo per posta elettronica quando ci saranno annunci nuovi o se saranno modificati
 

Contatta INCOR

Codice rif. annuncio habitaclia/E1861:

Vedrai il telefono dopo aver inviato il tuo contatto all’annunciante di modo che ti può rispondere.
Vedrai il telefono dopo aver stabilito il contatto
Inviando...