Voto Salvato!
Lo vedrai solo tu
Commento salvato!
Aggiungi la tua valutazione e/o un commento per questo annuncio. Lo vedrai solo tu

Appartamento 87m2 con riscaldamento parcheggio in Vilamarina Viladecans

  • da 87 m2
  • 3 hab.
  • 2 bagni
  • 4.471 €/m2
CAL BLAS
Appartiene alla promozione

CAL BLAS

Esta promoción tiene 13 tipos de abitazioni Vedi promozione

Nueva Promoción de Viviendas en Viladecans
Descubre esta exclusiva promoción de 19 viviendas de obra nueva ubicada en una de las
zonas más consolidadas y bien comunicadas de Viladecans. El edificio se compone de
viviendas modernas, plazas de aparcamiento y trasteros, diseñados para ofrecer el máximo
confort, eficiencia y estilo. Situado en una ubicación inmejorable, próximo al Parque
Tecnológico de Viladecans, y cerca de la estación de Renfe de la población, línea de autobuses
y conexiones con la autopista C-32. Esta promoción disfruta de una excelente comunicación
con transporte público, proximidad a servicios, zonas verdes, centros educativos y comercios.
Ideal para familias, parejas o inversores que buscan calidad de vida a solo unos minutos de
Barcelona. La promoción consta de viviendas de 2 y 3 dormitorios con acabados de alta
calidad. Plazas de aparcamiento y trasteros disponibles en el mismo edificio. Construcción
moderna con estructura de hormigón armado y aislamiento térmico y acústico. Ascensor de
gran capacidad incluyendo instalación aerotérmica de alta eficiencia, con una calificación
energética AA, garantizando la máxima eficiencia y ahorro energético.
Memoria de calidades destacada
? Estructura y fachada: Hormigón armado, fachada ventilada con sistema SATE y
acabados cerámicos.
? Cubiertas transitables y ajardinadas, con sistema de impermeabilización bicapa.
? Carpintería exterior con rotura de puente térmico y doble acristalamiento.
? Climatización mediante aerotermia, con sistemas individuales por vivienda.
? Instalación completa de telecomunicaciones y preinstalación para coche eléctrico.
? Iluminación LED de bajo consumo en zonas comunes.
? Cocinas equipadas con mobiliario de diseño y electrodomésticos Balay (placa de
inducción, campana, horno y microondas).
? Baños modernos con sanitarios Roca y griferías de diseño (Hansgrohe y Stillo).
? Pavimentos de parquet laminado y gres porcelánico en zonas húmedas.
? Puertas interiores lacadas en blanco, de diseño moderno.
¿Quieres más información?
No pierdas la oportunidad de vivir o invertir en una de las zonas con más proyección del Baix
Llobregat.
Contáctanos para planos, precios y visitas personalizadas.

ultima modifica

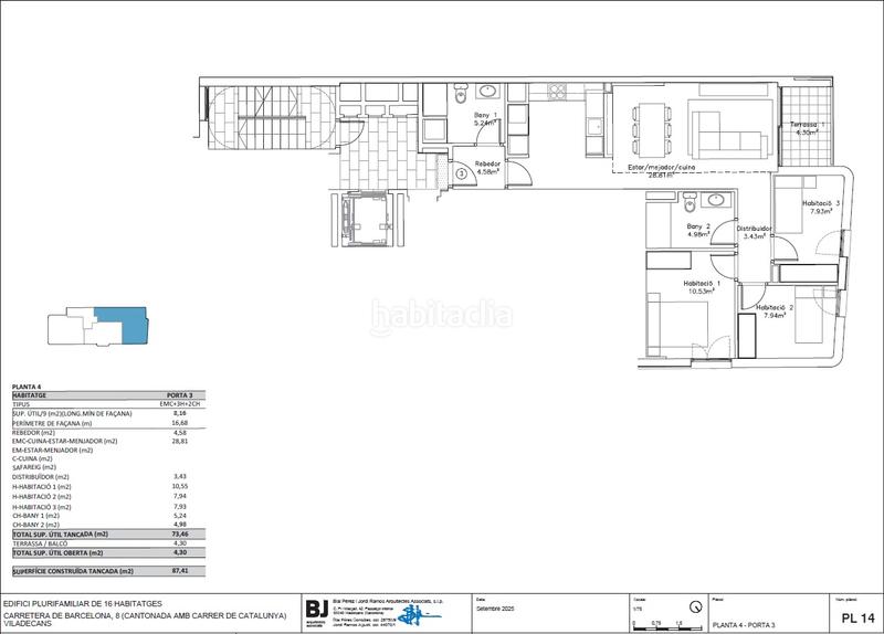
Distribuzione

  • 3 stanze
  • Superficie 87 m2
  • Balcone / Terrazza 4 m2
  • 2 bagni
  • Cucina abitabile: No
  • ripostiglio

Caratteristiche Generali

  • Riscaldamento
  • Posto auto
  • Aria Condizionata
  • Certificato energetico :
    Consumo:
    A
    26 kW h m2 / año
    Emisiones:
    A
    4 kg CO2 m2 / año

Impianti condominiali

  • Ascensore
Annuncio: 2415004301574

Ubicazione

Vilamarina

Naviga per la mappa cliccandoci sopra
389.000 € Prezzo dell´annuncio
2.913 €/m2€/m2 población
4.471 €/m2€/m2 dell´annuncio
Vedi evoluzione €/m2 in Viladecans
Ti avvisiamo quando abbiamo un annuncio come questo? Crea il tuo avviso e noi ti avvertiremo per posta elettronica quando ci saranno annunci nuovi o se saranno modificati
 

Appartiene alla promozione CAL BLAS

Viladecans
Promoción CAL BLAS Viladecans da 259.000 € Vedi promozione
Altri tipi di case di questa promozione

Contatta merkapiso.com

Codice rif. annuncio habitaclia/4º3ª:

Vedrai il telefono dopo aver inviato il tuo contatto all’annunciante di modo che ti può rispondere.
Vedrai il telefono dopo aver stabilito il contatto
Inviando...